Budapest, XVI.kerület


 

Ingatlan adatai

Irányár: 199 000 000 Ft
Típus: ház
Kategória: eladó
Alapterület: 281 m2
Fűtés: gáz (cirko)
Állapota: -
Szobák száma: 6
Építés éve: 2002
Szintek száma: -
Telekterület: 1 083 m2
Kert mérete: 1 083 m2
Erkély mérete: 25 m2
Felszereltség: -
Parkolás: -
Kilátás: -
Egyéb extrák:  
-

Részletes leírás

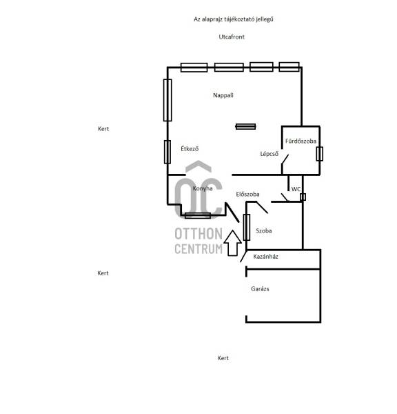
Eladó a 16. kerületben, Rákosszentmihályon, csendes, zöld környezetben egy többgenerációs, belső kétszintes, nappali + 4 (+1) hálószobás, duplakomfortos, rezsivédett családi ház, 1083 nm-es telken!HÁZ:- 2002-ben épült, kifejezetten világos hatalmas ablakainak köszönhetően!- Tágas, belső kétszintes, nagyobb családok számára is tökéletes! - Az egyik hálószobához tartozik egy 16 m2-es terasz, ami lépcsőn keresztül az udvarról is megközelíthető!- A kert hátsó részén épült egy különálló, 33 nm-es, 1 szobás, összkomfortos lakrész (jelenleg felújítandó), így többgenerációs, vagy vállalkozók számára is kiváló lehetőség!- Az ingatlan kívülről is szigetelt, ami esztétikailag és a rezsi szempontjából is kedvező! - A rezsiköltség alacsony, a külön lakrész miatt dupla mennyiségű, kedvezményes gáz felhasználható!- A fűtéséről gázkazán (Vaillant), illetve 5 db klímaberendezés gondoskodik!- Elhelyezkedése kiváló, pár perc alatt elérhető autóval az Árkád, IKEA, Sugár, Ázsia Center, illetve Pólus Center bevásárlóközpontok. - A 144-es busszal, ami az ingatlantól 1 perc sétára található, az Örs vezér tere metró megállója 15 perc alatt elérhető.- Szintén a közelben: Tesco, gyógyszertár, zöldséges, bevásárlási lehetőség, iskola, óvoda, orvosi ellátás stb. INTIM KERT:- Budapesti viszonylatban kivételesen nagy , akár gazdálkodásra, önellátásra , kertészkedésre, raktározásra alkalmas, 1083 m2-es birtok.- A gyerekek nagy örömére egy játszótér is kialakításra került, kisházzal, csúszdával, mászókával és mindez a zöldellő fák és borkor között.- Itt található még egy 15 nm-es, fedett-fából készült pergola is, ami a kinti sütögetéseknek és baráti összejöveteleknek tökéletes helyszínt biztosít.- Az udvar hátsó részén egy kis tavacskában is gyönyörködhetünk és fúrt kút is megtalálható.- Egy fűthető medence is kialakításra került, ami a nyár meleg napjait igazán elviselhetővé teszi.- Gépkocsival egy elektromos kapun keresztük jutunk be az udvarra, ahol még legalább 5 autó is kényelmesen parkolhat, hiszen az udvar nagy része viacolorral burkolt. A ház hátsó részében egy 30 m2-es, zárt garázs is található.EGYÉB JELLEMZŐK:- Tégla falazat- Fa, illetve műanyag thermoplan nyílászárók- Zsindely borítású, kiváló állapotú tető- Ház alatt pince, kb. 30 nm- Kiépített biztonsági- és kamerarendszer- Elektromos garázskapu- KaputelefonAz ingatlan per-, teher- és igénymentes, saját helyrajzi számmal rendelkezik, 1/1-es tulajdonINGYENES hiteltanácsadást is kínálunk! Bankfüggetlen hitelcentrumunk összehasonlítja az elérhető bankok és hitelintézetek ajánlatait, így Ön a legjobb konstrukciót kaphatja, ráadásul teljesen díjmentesen.Gyermekes családok, idősebb korosztály, de akár vállalkozások számára is ideális lehet!Amennyiben elnyerte tetszését és szeretné megtekinteni az ingatlant, hívjon bizalommal!

Hirdető adatai

Hirdető neve: Otthon Centrum
Kapcsolattartó: Lutter Liza
Hirdető telefonszáma: +36 70 412 3491
Honlap: -