Somogy megye, Siófok


 

Ingatlan adatai

Irányár: 69 990 000 Ft
Típus: ház
Kategória: eladó
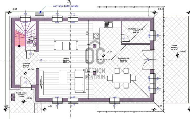
Alapterület: 93 m2
Fűtés: -
Állapota: új
Szobák száma: 4
Építés éve: 2025
Szintek száma: -
Telekterület: 400 m2
Kert mérete: 400 m2
Erkély mérete: 15 m2
Felszereltség: -
Parkolás: -
Kilátás: -
Egyéb extrák:  
-

Részletes leírás

Ingatlanok 92,7 m² bruttó plusz 15 m² terasszal rendelkeznek.✅️Ami három szobát, egy nappalit, konyhát, fürdőszobát, mellékhelyiséget, és egy gardróbot takar.✅️Két különálló épület ami tökéletes nyaralónak, vagy akár családiháznak is.????A fűtést hőszivattyús padlófűtés rendszer látja el, amihez \"H\" órát is biztosítunk a nulla százalékos fűtéshez. Külön kérésre lehet kérni napelemet is .☀️☀️☀️Az ingatlanok hőszigetelése 15 cm homlokzati, 10 cm lábazati, és 25 cm mennyezeti szigetelést fognak kapni, illetve 6 légkamrás 3 rétegű műanyag ablakok biztosítják hogy egészévben meleg/hűvös és takarékosak maradjanak a lakások.❄️Az ingatlanokat még a maga igényei szerint tudja alakítani mivel az épületek Márciusban fognak elindulni mint saját beruházás, de ha előbb tulajdonosra találnak akkor előrébb hozzuk az átadást.A környék nemcsak a csendes, családias hangulatáról híres, hanem kiváló közlekedési lehetőségekkel is rendelkezik. A tömegközlekedés könnyen elérhető, így a város központja vagy a Balaton partja néhány perc alatt megközelíthető. Az autóval közlekedők számára a közeli főutak gyors és kényelmes elérhetőséget biztosítanak, így akár a környező települések is könnyen felfedezhetők. A környék biztonságos és barátságos, ideális hely a gyerekek számára, akik szabadon játszhatnak az utcán, miközben Ön nyugodtan pihenhet. A közeli iskolák, óvodák és játszóterek mind hozzájárulnak ahhoz, hogy itt valóban otthon érezze magát. A helyi közösség aktív és támogató, így könnyen barátokra találhat, és részt vehet a helyi rendezvényeken. ✉️Kérjük, vegye fel velünk a kapcsolatot a helyszíni megtekintés érdekében, és ne habozzon, mert ez a lehetőség hamar elkel!

Hirdető adatai

Hirdető neve: Otthon Centrum
Kapcsolattartó: Bezzeg Nikoletta
Hirdető telefonszáma: +36 70 716 8431
Honlap: -