Pest megye, Dunaharaszti


 

Ingatlan adatai

Irányár: 245 000 000 Ft
Típus: ház
Kategória: eladó
Alapterület: 295 m2
Fűtés: -
Állapota: -
Szobák száma: 4
Építés éve: 2000
Szintek száma: -
Telekterület: 825 m2
Kert mérete: 825 m2
Erkély mérete: 55 m2
Felszereltség: -
Parkolás: -
Kilátás: -
Egyéb extrák:  
-

Részletes leírás

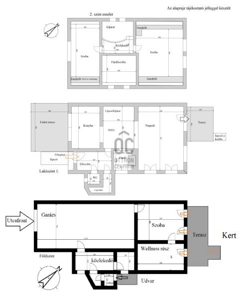
Budapest határánál, Dunaharaszti csendes részén a Ráckevei (Soroksári)-Duna parttól 1 perc sétára a Nefelejcs utcában található ez a különleges ingatlan, amely a prémium kivitelezés és az egyedi tervezés jegyében készült. Az ingatlan nettó alapterülete 295 négyzetméter, három terasza 55 négyzetméter, 825 négyzetméteres telken helyezkedik el, amely tökéletes környezetet biztosít a mindennapi élethez. A házban négy szoba és három fürdőszoba található, így ideális választás lehet nagyobb családok számára, vagy akár befektetési célra is. A világos konyha konyhaszigettel is rendelkezik és a hallon át kapcsolódik a nappalihoz, ami a családi összejövetelek középpontja lehet. A konyhából nyíló terasz, folyóra néző kilátásával pedig egy igazán különleges élményt nyújt. A nappali kandallóval is felszerelt, amely a téli estéket varázsolja otthonossá. A beépített bútorok és szekrények maximálisan kihasználják a rendelkezésre álló teret, így a lakás rendezett, esztétikus megjelenésű és szinte \"0\" energia igényű a telepített napelemrendszernek köszönhetően. A település kiemelkedő közlekedési lehetőségekkel rendelkezik, hiszen a közeli buszmegállók és vasútállomás révén Budapest belvárosa is könnyen elérhető. Az autós közlekedés is egyszerű, a főbb útvonalak gyorsan megközelíthetőek. A környék biztonságos és csendes, ideális helyszín a pihenésre és a feltöltődésre. A rendezett kert, amely a ház körül található, szintén hozzájárul a nyugalomhoz, és lehetőséget biztosít a szabadban való kikapcsolódásra. Az ingatlan további különlegessége a wellness rész, közvetlen kertkapcsolattal, amely a mindennapi stressz levezetésére szolgál, valamint a riasztórendszer, amely a biztonságot garantálja. Tehermentes ingatlan, így gyorsan és egyszerűen birtokba vehető. Ez a ház nem csupán egy lakóhely, hanem egy életstílus, amely a kényelmet és a minőséget ötvözi. Amennyiben kérdése van az ingatlannal vagy a vásárlási folyamattal kapcsolatban, forduljon hozzám bizalommal.

Hirdető adatai

Hirdető neve: Otthon Centrum
Kapcsolattartó: Polgár Péter
Hirdető telefonszáma: +36 70 716 9831
Honlap: -