Jász-Nagykun-Szolnok megye, Pusztamonostor


 

Ingatlan adatai

Irányár: 34 990 000 Ft
Típus: ház
Kategória: eladó
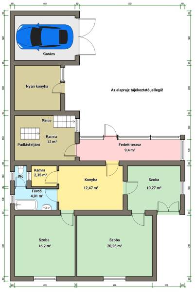
Alapterület: 89 m2
Fűtés: gáz (cirko)
Állapota: -
Szobák száma: 2+1
Építés éve: 1960
Szintek száma: -
Telekterület: 5 952 m2
Kert mérete: 5 952 m2
Erkély mérete: 10 m2
Felszereltség: -
Parkolás: -
Kilátás: utcai
Egyéb extrák:  
-

Részletes leírás

Fiatal felnőttek figyelem! Ha egy igazán különleges otthont keresel, ami nemcsak kényelmes, hanem a gazdálkodásra alkalmas méretű kerttel rendelkezik, akkor ezt a lehetőséget ne hagyd ki!Pusztamonostoron központjában az 1960-as években épült vályogból+téglából ez a használt lakóingatlan, amely 89 nm-es alapterületével és 5952 nm-es telekméretével bőséges helyet biztosít számodra és családod számára gazdálkodás kialakítására vagy hobbi kertészetnek. A házban 2 tágas szoba és 1 félszoba várja, hogy otthonoddá váljon, és a fürdőszoba is kényelmesen megoldja a mindennapi szükségleteket. Az ingatlan közepes állapotú, így lehetőséged van saját ízlésed szerint alakítani, miközben már most is élvezheted a benne rejlő lehetőségeket. Az elmúlt években a következő felújítások történtek:- Tető korszerűsítése cserepeslemezzel- Új KONDENZÁCIÓS gázkazán- Hűtő-Fűtő Gree Klíma- 3x25 Amper nappali áram és 3x20 Amper éjszaki áram áll rendelkezése- 38 méter mély kút biztosítja a locsolástAz önálló GARÁZS egy kisebb méretű autó számára biztonságos parkolási lehetőséget nyújt. A sarokteleknek köszönhetően a telek megosztása lehetséges és külön értékesíthető építési telekként, ha nincs rá szükség. (Építésügyi hatóság jóváhagyása/megerősítése szükséges)A KÖZPONTI elhelyezkedésnek köszönhetően minden fontos intézmény, bolt, iskola és orvosi rendelő könnyen elérhető. A környék BIZTONSÁGOS, így ideális választás családok számára is. Az ingatlan Falusi CSOK-ra alkalmas, ami különösen vonzó lehet, ha támogatást keresel a vásárláshoz. Közlekedési szempontból is kedvező helyzetben vagyunk, hiszen a település jól megközelíthető autóval, és a tömegközlekedés is könnyedén elérhető Jászberény, Jászfényszaru és Hatvan városa is. Pusztamonostor barátságos közössége és a természet közelsége ideálissá teszi ezt a helyet a nyugodt életvitelhez. Ne habozz, ha kérdéseid lennének, vagy szeretnéd megtekinteni ezt a tehermentes ingatlant, bátran kereshetsz! Az ingatlan piaca gyorsan változik, és ez a lehetőség nem marad sokáig nyitva.

Hirdető adatai

Hirdető neve: Ingatlanmentor powered by Rock Home
Kapcsolattartó: Horváth Tibor
Hirdető telefonszáma: +36 70 467 6871
Honlap: -