Nógrád megye, Buják


 

Ingatlan adatai

Irányár: 17 000 000 Ft
Típus: ház
Kategória: eladó
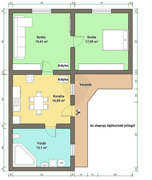
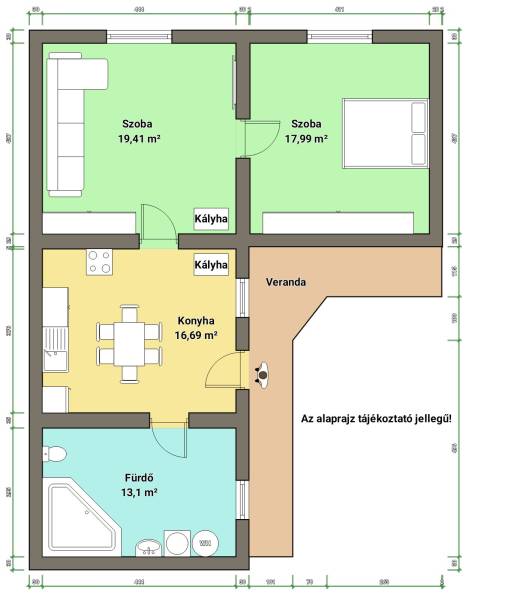
Alapterület: 66 m2
Fűtés: -
Állapota: -
Szobák száma: 2
Építés éve: 1960
Szintek száma: -
Telekterület: 1 088 m2
Kert mérete: 1 088 m2
Erkély mérete: -
Felszereltség: -
Parkolás: -
Kilátás: utcai
Egyéb extrák:  
-

Részletes leírás

Buják CSENDES, barátságos utcájában kínálunk eladásra egy vegyes falazatból épült családi házat, amely ideális lehet középkorúak számára, akik egy nyugodt, családias környezetben szeretnének élni.Ez a nettó 66 nm-es ingatlan tökéletes választás lehet, ha a békés életvitel és a természet közelsége a prioritásod. Az ingatlan elhelyezkedése páratlan, hiszen a telek mérete 1088 nm, ami lehetőséget biztosít a szabadban való pihenésre és a kertészkedésre. A két szobás elrendezés kényelmes otthont biztosít, ahol 2 db kályha gondoskodik a fűtésről. A fürdőszoba praktikus elrendezésű, tágas, teljesen felújított, így a mindennapi használat során maximális kényelmet nyújt. A villanyvezeték rendszer és a nyílászárók szintén KORSZERŰSÍTÉSRE kerültek. Új konyhabútor került beépítésre. A ház költözhető állapotú, külsőleg igénnyel majd felújítást.A természet közelsége lehetővé teszi a kirándulásokat és a szabadban eltöltött időt. A tömegközlekedés kedvező, autóval pedig gyorsan megközelíthető a környező települések, így a napi ingázás sem jelent problémát. Az ingatlan TEHERMENTES, így azonnal birtokba vehető, igény esetén KEDVEZŐ lakáshitel ügyintézésben díjmentes segítséget nyújtok! Ha egy kényelmes otthont keresel 2-3 fő számára és fontos az ALACSONY FENNTARTÁSI költség, akkor ezt a lehetőséget ne hagyd ki!

Hirdető adatai

Hirdető neve: Ingatlanmentor powered by Rock Home
Kapcsolattartó: Horváth Tibor
Hirdető telefonszáma: +36 70 467 6871
Honlap: -