Pest megye, Veresegyház


 

Ingatlan adatai

Irányár: 155 000 000 Ft
Típus: ház
Kategória: eladó
Alapterület: 126 m2
Fűtés: gáz (cirko)
Állapota: új
Szobák száma: 5
Építés éve: 2025
Szintek száma: -
Telekterület: 830 m2
Kert mérete: 830 m2
Erkély mérete: 20 m2
Felszereltség: -
Parkolás: -
Kilátás: -
Egyéb extrák:  
-

Részletes leírás

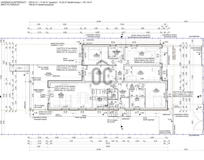
Új építésű, prémium minőségű családi ház eladó Veresegyház festői környezetében!Veresegyház egyik legszebb, csendes, kertvárosi részén kínálunk eladásra egy 2025-ben épülő, földszintes, kimagasló minőségben kivitelezett családi házat.Nettó alapterület: 125,93 m²Bruttó alapterület: 158,75 m²Szobák száma: 4 különnyíló szobaFürdőszobák: 2 fürdő + különálló WCTerasz: 20 m², dél-nyugati tájolássalA ház 275 cm-es belmagassággal, világos, átgondolt alaprajzzal, praktikus elrendezéssel és modern műszaki megoldásokkal készül, így tökéletes választás azoknak, akik hosszú távra keresnek értékálló, kényelmes otthont.Kiemelkedő műszaki tartalom:30 cm POROTHERM vázkerámia falazat + 10 cm grafitos EPS szigetelés (Austrotherm Reflex)12 cm lépésálló EPS hőszigetelés a padlószerkezetben (Austrotherm AT-N100)BRAMAC cserépfedésű magastető, páraáteresztő fóliás alátéttelLáng- és gombamentesített tetőszerkezetFagyálló burkolatok kültérenKorszerű fűtés előkészítés, igény szerint választható rendszerrelGáz cirkó padlófűtésMinden szoba külön bejáratúLokáció és környezet:A ház festői környezetben, halastó közelében helyezkedik el, távol a város zajától, mégis kiváló közlekedéssel, gyorsan elérhető a főváros irányába is. A környék nyugalma, a természet közelsége és a modern infrastruktúra ideális otthonná teszi az ingatlant családok számára.

Hirdető adatai

Hirdető neve: Otthon Centrum
Kapcsolattartó: Doktor Tímea
Hirdető telefonszáma: +36 70 412 5796
Honlap: -