Pest megye, Kerepes


 

Ingatlan adatai

Irányár: 99 900 000 Ft
Típus: ház
Kategória: eladó
Alapterület: 150 m2
Fűtés: gáz (cirko)
Állapota: -
Szobák száma: 5
Építés éve: 1990
Szintek száma: -
Telekterület: 709 m2
Kert mérete: 709 m2
Erkély mérete: 50 m2
Felszereltség: -
Parkolás: -
Kilátás: -
Egyéb extrák:  
-

Részletes leírás

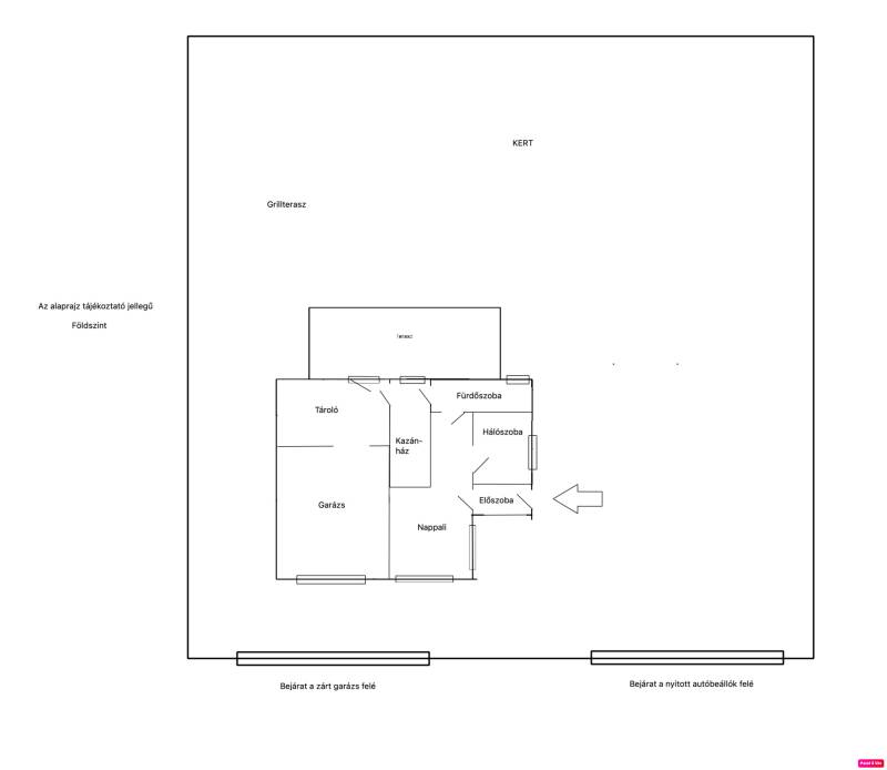
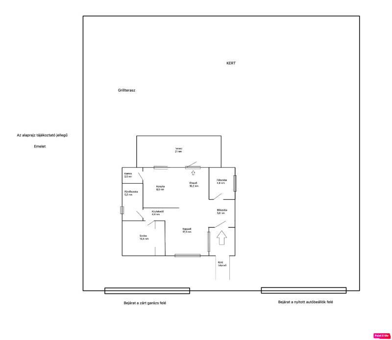
Eladó Kerepes legkedveltebb részén, Szilasligeten, egy kétgenerációs, belső kétszintes családi ház, 706 m²-es telken!Az alsó és felső szinthez külön-külön, külső bejáraton lehet bejutni (tehát belső lépcső/összeköttetés a házon belül nincsen.) Így kiváló választás lehet többgenerációs együttéléshez, vagy akár befektetési célra is.CSALÁDI HÁZ- Az 1989-ben épült ház azóta több felújításon átesett, folyamatosan karbantartott és gondosan csinosított otthon- A műanyag nyílászárók újak, redőnnyel és szúnyoghálóval felszereltek- A fűtésről gázcirkó gondoskodik, de egy vegyes tüzelésű kazán is rendelkezésre áll- A két külön konyhának köszönhetően az ingatlan rezsivédett, azaz a kedvezményes gáz kétszerese használható- A homlokzat szigetelt (12 cm), ami nemcsak esztétikus, de tovább csökkenti a fűtési költségeket is- A kertben lévő grillezőterasszal ideális helyszín összejövetelekhezFelső szint- Az emeleti lakótér kb. 84 m²-es (nappali + 1,5 szoba), nagyon jó elrendezésű- A konyha-étkező központi helyet foglal el- Az étkezőből közvetlen kijárat nyílik a tágas teraszra, ahonnan csodás, zöld körpanoráma tárul elénk- A hálószobához tágas, tükrös tolóajtóval leválasztott gardróbszoba tartozik.Alsó szint- Az alsó szint megközelíthető a garázson keresztül, illetve külön, oldalsó bejáraton át is- A szinten található továbbá tároló, kazánház, valamint egy 42 m²-es, 2 szobás lakrész- Ideális lehet például idősebb szülőkkel együtt élésre, vagy fiataloknak önálló lakrésznek egyarántKÖRNYEZET, KÖZLEKEDÉS- Tökéletes választás mindazoknak, akik zöldövezetben élnének, mégis elérhető távolságra a várostól.- A HÉV-, valamint buszmegállók mindössze 5 perc sétára találhatóak- Bevásárlási lehetőség pár perc sétatávolságra van- Nyugodt, kertvárosias, családias környezet- Kirándulni közeli erdőben, természetvédelmi területen lehetItt megtalálhatja a természet csendjét anélkül, hogy lemondana a város közelségéről!Amennyiben felkeltette érdeklődését, kérem, keressen bizalommal!

Hirdető adatai

Hirdető neve: Otthon Centrum
Kapcsolattartó: Lutter Liza
Hirdető telefonszáma: +36 70 412 3491
Honlap: -