Budapest, XII.kerület


 

Ingatlan adatai

Irányár: 119 000 000 Ft
Típus: lakás (tégla)
Kategória: eladó
Alapterület: 68 m2
Fűtés: gáz (cirko)
Állapota: -
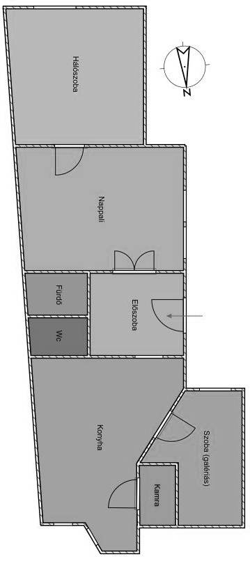
Szobák száma: 3
Építés éve: 1930
Szintek száma: -
Telekterület: -
Kert mérete: -
Erkély mérete: -
Felszereltség: -
Parkolás: -
Kilátás: udvari
Egyéb extrák:  
-

Részletes leírás

Eladó a Krisztinavárosban, a Csaba utcában, kiváló lokációval egy fsz-i, 3 szobás lakás, tárolóval együtt.Az épületen belül a lakás a belső udvar, utcával szemközti oldalán fekszik. Ezért csöndes, a forgalom zaja nem szűrődik be. A lakás földszinti mivoltából adódóan kerekesszékkel is könnyen megközelíthető. Az udvaron kerékpár vagy babakocsi közvetlen a lakás bejárata mellett tartható.A társasház pénzügyi helyzete stabil, a homlokzatot 2 éve újították fel. A következő felújítás a belső homlokzatok egyes részeit érintik majd.A lakóközösség a helynek megfelelően, összetartó, odafigyelő és segítőkész.A lakás egyedi alaprajza és a határoló falak különleges elhelyezkedése miatt az új tulajdonosnak az esztétikus, megfelelően hely-optimalizált belső enteriőr eléréséhez lakberendező-belső építész felkeresése ajánlott. Konzultációért hívja a +36 20 261 3277 számot.

Hirdető adatai

Hirdető neve: Otthon Centrum
Kapcsolattartó: Dorogi Dávid
Hirdető telefonszáma: +36 70 388 6081
Honlap: -