Pest megye, Valkó


 

Ingatlan adatai

Irányár: 59 900 000 Ft
Típus: ház
Kategória: eladó
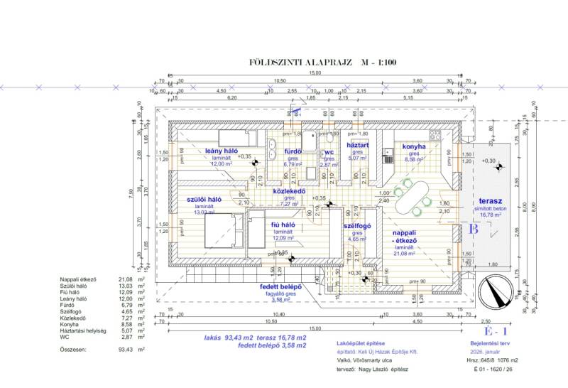
Alapterület: 93 m2
Fűtés: -
Állapota: új
Szobák száma: 4
Építés éve: 2026
Szintek száma: -
Telekterület: 1 076 m2
Kert mérete: 1 076 m2
Erkély mérete: 17 m2
Felszereltség: -
Parkolás: -
Kilátás: udvari
Egyéb extrák:  
-

Részletes leírás

Valkón a Vörösmarty utcában 1076 m²-es telken, eladó egy 30-as Porotherm P30 N+F falazóelemből épülő, új építésű, nettó 93,43 m²-es, közel nulla energia igényű, betoncseréppel fedett kulcsrakész családi ház.A padló 12 cm-es Austrotherm ATN-100-as lépésálló szigeteléssel, a homlokzatok 15 cm Austrotherm AT-H80 dryvit szigeteléssel, a födém 33 cm Rockwool Airrock HD ásványgyapot szigeteléssel lesz ellátva.A nyílászárók műanyag 6 légkamrás, 3 rétegű thermo üveggel szereltek.Fűtés levegő-víz hőszivattyúval készül, padlófűtéssel.Műszaki tartalom:-Hideg - Meleg burkolatok: 3000.- Ft./ m²-Beltéri ajtók:35.000.- Ft./db-Csaptelepek:15.000.- Ft./db-Fürdőkád:40.000.- Ft./dbKérésre szívesen küldünk komplett tervdokumentációt, műszaki leírást.INGYENES hitel tanácsadás, CSOK ügyintézés!BANKFÜGGETLEN hitelcentrumunk minden elérhető bank és hitelintézet ajánlatát versenyezteti az Ön kedvéért, ráadásul DÍJMENTESEN.Amennyiben hirdetésem felkeltette az érdeklődését vagy egyéb információra van szüksége hívjon bizalommal!

Hirdető adatai

Hirdető neve: GDN Ingatlanhálózat
Kapcsolattartó: Horváth Péter
Hirdető telefonszáma: +36-70-606-2990
Honlap: -