Pest megye, Dunaharaszti


 

Ingatlan adatai

Irányár: 177 900 000 Ft
Típus: ház
Kategória: eladó
Alapterület: 220 m2
Fűtés: gáz (cirko)
Állapota: -
Szobák száma: 5
Építés éve: 2005
Szintek száma: -
Telekterület: 1 235 m2
Kert mérete: 1 235 m2
Erkély mérete: -
Felszereltség: -
Parkolás: -
Kilátás: -
Egyéb extrák:  
-

Részletes leírás

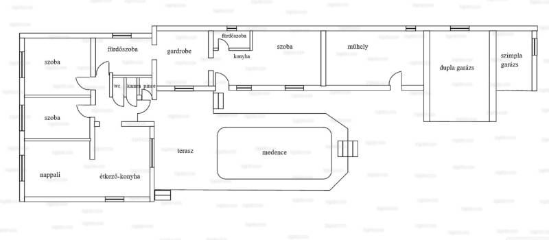
Luxus és kényelem Dunaharaszti szívében – Okos Otthon két generáció számára!Eladó Dunaharasztin egy 220 nm +90 nm (Műhely, kétállásos garázs, egyállásos garázs,) +60 nm (pince,Terasz, nyári sütügető) , 5 szobás, prémium felszereltségű családi ház 1235 m²-es, körbekerített telken, amely Okos Otthon technológiával és kivételes extrákkal kínál biztonságot akár két generáció számára is. Okos Otthon vezérlés – applikáción keresztül irányítható:külső-belső világítás,konnektorok, garázskapuk, szivattyúk, medence vízforgató, klímák, kamera- és riasztórendszer. Kiemelt extrák:Napkollektorral fűtött medenceFedett, kemencés kerti sütögető igényes kialakítással2 állásos + 1 állásos garázs, műhely3 hűtő-fűtő klíma, thermó üveges nyílászárók redőnnyel és szúnyoghálóvalMinőségi belső és külső ajtók, 10 cm homlokzati szigetelés, kőzetgyapot tetőtéri szigetelésGépesített, modern konyhaÖntöző rendszerKaputelefon, füst- és CO-érzékelő, teljes riasztó- és kamerarendszer Elhelyezkedés és infrastruktúra:Dunaharaszti Budapesttől mindössze fél órára található, M0, M1, M3, M4, M5, M7 autópályák gyors elérésével. A település kiváló infrastruktúrával rendelkezik: óvodák, iskolák, bevásárlóközpontok (Lidl, Tesco, Aldi, Rossmann, DM), piac, orvosi és magánorvosi rendelők, éttermek, szépségszalonok, valamint a Duna-part közelsége, ahol számos vízi sport és kikapcsolódási lehetőség adott. Ez a ház a kényelem, a luxus és a modern technológia tökéletes harmóniája – ideális választás, ha egy igazán különleges otthont keres családja számára.

Hirdető adatai

Hirdető neve: Otthon Centrum
Kapcsolattartó: Gál Jánosné
Hirdető telefonszáma: +36 70 465 7056
Honlap: -