Heves megye, Domoszló


 

Ingatlan adatai

Irányár: 25 000 000 Ft
Típus: ház
Kategória: eladó
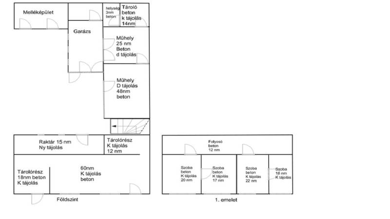
Alapterület: 310 m2
Fűtés: -
Állapota: felújítást igényel
Szobák száma: 5
Építés éve: 1960
Szintek száma: -
Telekterület: 597 m2
Kert mérete: 597 m2
Erkély mérete: -
Felszereltség: -
Parkolás: -
Kilátás: utcai
Egyéb extrák:  
-

Részletes leírás

Saját otthont keresel, amit a saját stílusodra formálhatsz? Akkor ez az ingatlan neked szól!2szer 90 nm és melléképületben plusz 130 nm el gondolkodhasz.Ez a tágas, földszintes, külön bejáratokkal rendelkező épület jelenleg üzlethelyiségként szerepel a tulajdoni lapon, de minden adottsága megvan ahhoz, hogy családi házként funkcionáljon – akár egy, akár több generáció számára.????️ Több szoba kialakítására alkalmas???? Fürdő, konyha, étkező könnyen kialakítható ???? Saját udvar, kertkapcsolat???? Több külön bejárat – akár 2-3 lakás is kialakítható????️ Felújítandó – ízlés szerint alakítható???? Csendes, családi házas övezetbenIdeális választás családoknak, akik egy tágas, egyedi otthont keresnek, de befektetők számára is érdekes lehetőség, hiszen akár több lakóegységre is bontható, kiadható.Az ingatlan jogilag jelenleg üzlethelyiség, de a lakáscélú használat irányába történő módosítás lehetséges – Részletekről keress bizalommal!

Hirdető adatai

Hirdető neve: Otthon Centrum
Kapcsolattartó: Nagy Zoltánné Zsani
Hirdető telefonszáma: +36 70 469 3286
Honlap: -