Pest megye, Albertirsa


 

Ingatlan adatai

Irányár: 69 900 000 Ft
Típus: ház
Kategória: eladó
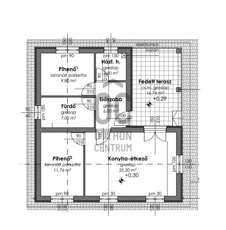
Alapterület: 63 m2
Fűtés: egyéb
Állapota: -
Szobák száma: 2
Építés éve: 2022
Szintek száma: -
Telekterület: 496 m2
Kert mérete: 496 m2
Erkély mérete: 20 m2
Felszereltség: -
Parkolás: -
Kilátás: -
Egyéb extrák:  
-

Részletes leírás

Albertirsán, csendes és nyugodt környezetben, a strandtól pár perces sétára kínálunk eladásra egy 3 éve épült, modern kialakítású családi házat.Az ingatlan praktikus elrendezésű: tágas, világos nappali, két kényelmes hálószoba, valamint korszerű fürdőszoba és konyha várja új tulajdonosát. A 500 nm-es telek ideális pihenésre, kertészkedésre vagy akár kisebb játszótér, medence kialakítására is alkalmas.A ház korszerű építési megoldásokkal készült, így alacsony fenntartási költséggel üzemeltethető, és hosszú távon biztosít kényelmes, otthonos életteret.Főbb jellemzők:- 3 éve épült, modern családi ház- 2 hálószoba + nappali- 500 nm-es telek- Inverteres klíma- Strand és központ közelsége- Csendes, barátságos környékEz az ingatlan ideális választás lehet fiatal családoknak, pároknak vagy azoknak, akik nyugodt környezetben, mégis jó infrastruktúrával rendelkező településen keresik új otthonukat.Bávebb információval és megtekintéssel kapcsolatban várom hívását!Ez az ingatlan a \"Felező csomag\" megbízási portfólióhoz tartozik. Részletek az Otthon Centrum weboldalán.

Hirdető adatai

Hirdető neve: Otthon Centrum
Kapcsolattartó: Szoboszlai Katalin
Hirdető telefonszáma: +36 70 469 3221
Honlap: -