Bács-Kiskun megye, Kecskemét


 

Ingatlan adatai

Irányár: 47 900 000 Ft
Típus: ház
Kategória: eladó
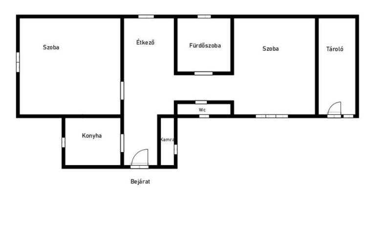
Alapterület: 75 m2
Fűtés: -
Állapota: felújítást igényel
Szobák száma: 2
Építés éve: 1970
Szintek száma: -
Telekterület: 707 m2
Kert mérete: 707 m2
Erkély mérete: -
Felszereltség: -
Parkolás: -
Kilátás: -
Egyéb extrák:  
-

Részletes leírás

Eladó családi ház Kecskemét–Alsószéktóban, az Izsáki úton!Kecskemét egyik legjobban frekventált részén, Alsószéktón, közvetlenül az Izsáki úton kínálunk megvételre egy 75 nm-es családi házat, amelyhez 30 nm melléképület és 20 nm garázs is tartozik.A tágas telek 50%-os beépíthetőséggel rendelkezik, besorolása: Vt-0252, így nemcsak otthonnak, hanem vállalkozási célra, üzleti tevékenységre is ideális választás.Az ingatlanban minden közmű elérhető, így azonnal használatba vehető, igény szerint felújítható vagy átalakítható.A kiváló lokáció – forgalmas, mégis jól megközelíthető környék – számos lehetőséget biztosít: legyen szó üzlethelyiség, iroda, telephely kialakításáról vagy akár családi otthon megteremtéséről.-75 nm főépület-30 nm melléképület- 20 nm garázs- Teljes közműellátottság -50% beépíthetőség- Vállalkozásra is kiválóÁr-érték arányban ritka lehetőség Kecskeméten – ne maradjon le róla!Amennyiben felkeltettem az érdeklődését, hívjon bizalommal!

Hirdető adatai

Hirdető neve: Otthon Centrum
Kapcsolattartó: Mezei László
Hirdető telefonszáma: +36 70 461 9911
Honlap: -