Részletes leírás
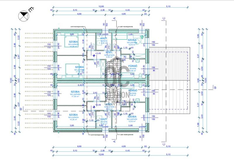
Eladó egy korszerű, magas műszaki tartalommal kivitelezett családi ház, mely minden részletében a kényelmet és az energiatakarékosságot szolgálja.✅ Nyílászárók: 5 légkamrás, 3 rétegű üvegezésű műanyag ablakok, hőszigetelt garázskapu, modern bejárati ajtó.✅ Burkolatok: hideg- és melegburkolatok ízlés szerint választhatók, minőségi kerámia csempék és gres burkolatok.✅ Fűtés-hűtés: levegő-víz hőszivattyús rendszer padlófűtéssel, külön vezérelhető szintekkel, split klímák a nappaliban és a déli fekvésű szobákban.✅ Belső terek: gipszkarton mennyezet, fehér diszperziós festés, dekorfóliás beltéri ajtók.✅ Fürdők, szaniterek: minőségi csaptelepek, mosdók, WC-k és üvegfalas zuhanyzó.✅ Extra felszereltség: elektromos kapu, kaputelefon, riasztó-előkészítés, redőny-előkészítés elektromos vezetékezéssel.✅ Kert és külső: térkőburkot bejárók, terasz, kavicsos szikkasztó, egyszerű kerítés és kerti csap kiépítve.Az ingatlan világos, modern homlokzattal (törtfehér-világos barna kombináció), energiatakarékos megoldásokkal és átgondolt belső elrendezéssel várja új tulajdonosát.