Budapest, XXII.kerület


 

Ingatlan adatai

Irányár: 470 000 000 Ft
Típus: ház
Kategória: eladó
Alapterület: 413 m2
Fűtés: gáz (cirko)
Állapota: -
Szobák száma: 7
Építés éve: 2007
Szintek száma: -
Telekterület: 1 082 m2
Kert mérete: 1 082 m2
Erkély mérete: 130 m2
Felszereltség: -
Parkolás: -
Kilátás: -
Egyéb extrák:  
-

Részletes leírás

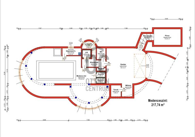
Egy ritkán elérhető, nagyvonalúan kialakított villa várja új tulajdonosát egy csendes, zöldövezeti csendes zsákutcában Rózsavölgyben.A 4 szintes épület nettó 412 m², bruttó 521 m² alapterületű, egy 1082 m²-es, gondozott telken helyezkedik el.Tágas terek, átgondolt belső struktúra, emelt szintű műszaki tartalom és városi panoráma jellemzi.✨ ÜDV ITTHON! ✨Alapadatok:Lakótér: 412 m²Bruttó alapterület: 521 m²Telek: 1082 m²Szintek száma: 4Szobák száma: 7Fürdőszobák: 3Lift mind a négy szintet összekötiTöbb nagy terasz, részben fedett – kiváló benapozottsággalKülönlegességek:Belső medence és wellnessrész szaunákkal, természetes fényekkelJacuzzi a kertben, intimebb zónában elhelyezveBorospince – hangulatos, jól temperáltTágas, világos terek – ideális nagycsaládosoknak vagy reprezentatív célokraIgényes kertépítészet, automata öntözőrendszerGarázs és több gépkocsi beállási lehetőség telken belülA villa állapota jó, igény szerint korszerűsíthető, de jelen formájában is használatra kész.A környék exkluzív, infrastrukturálisan jól ellátott, mégis csendes, zöld környezetet biztosít.Bővebb információ személyes megkeresésre, diszkréten, referenciával.Kizárólag komoly érdeklődők számára!Ha Ön olyan otthont keres, amelyben a tér, a minőség és a nyugalom egyszerre van jelen – kérjen időpontot személyes bemutatóra.

Hirdető adatai

Hirdető neve: Otthon Centrum
Kapcsolattartó: Pieke Dénes
Hirdető telefonszáma: +36 70 388 5291
Honlap: -