Pest megye, Leányfalu


 

Ingatlan adatai

Irányár: 128 000 000 Ft
Típus: ház
Kategória: eladó
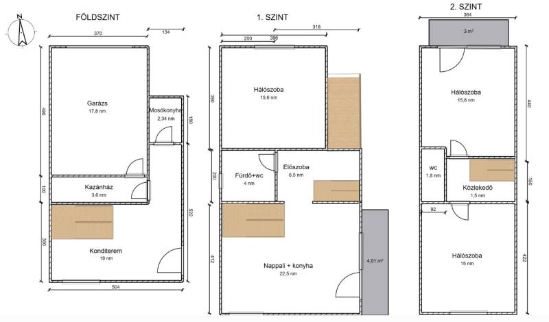
Alapterület: 127 m2
Fűtés: gáz (cirko)
Állapota: -
Szobák száma: 4
Építés éve: 1986
Szintek száma: -
Telekterület: 568 m2
Kert mérete: 568 m2
Erkély mérete: 8 m2
Felszereltség: -
Parkolás: -
Kilátás: -
Egyéb extrák:  
-

Részletes leírás

Amennyiben a képek, az ingatlan adatai felkeltették érdeklődését, akkor várom szeretettel egy megtekintésre.Még néhány fontos információ előtte:- A fűtést gázcirkó biztosítja, amit 2016-ban helyeztek el. Hatékony és gazdaságos megoldást kínál a hidegebb hónapokban is.- A ház téglaépítésű és 10 cm szigetelést kapott melynek köszönhetően az otthon melege és hangulata minden évszakban megmarad.- A belső felújítás 2020-ban kezdődött és a mai napig szépítik és fejlesztik a házat jelenlegi tulajdonosaiMit is jelent ez:- villany, fűtés, víz, csatorna, azaz minden fel lett újítva- az áram esetében: van éjszakai áram, 3*16 Amper, elektromos autó töltési lehetőség teljeskörűen kialakítva- az összes burkolat új színt és hangulatot adott a háznak.- kialakításra került az elektromos kapu- az okosotthon rendszer ami kiterjed mindenre. Fűtés, redőnyök, kapu, kamera, fűnyíró, stb.- a megújult gyönyörű kert öntözőrendszert kapottAdottságok, lokáció:- A ház közel 500 nm-es kertje remek helyszínt biztosít a kertészkedésre vagy akár egy kellemes nyári esti baráti összejövetel helyszinéül.- Fontos, hogy a fák, a kerítés pedig megadja azt az intimitást amit elvárunk egy háztól.- A garászba 1 autó a fedett beállóra 2 autó is kényelmesen elfér- A ház melletti kb 40 nm-es melléképület akár külön is használható tárolásra vagy egy különálló lakrészre.- És ha lesétálunk a patakpartjához a saját kertünkből akkor egy 4 nm-es borospincét is tudunk használni.Rengeteget tudnék még mondani róla, de javaslom jöjjön és nézze meg velem együtt!

Hirdető adatai

Hirdető neve: Otthon Centrum
Kapcsolattartó: Baji Andrea
Hirdető telefonszáma: +36 70 388 6306
Honlap: -