Komárom-Esztergom megye, Naszály


 

Ingatlan adatai

Irányár: 68 900 000 Ft
Típus: ház
Kategória: eladó
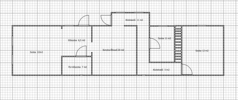
Alapterület: 100 m2
Fűtés: gáz (cirko)
Állapota: -
Szobák száma: 5
Építés éve: 1970
Szintek száma: -
Telekterület: 2 623 m2
Kert mérete: 2 623 m2
Erkély mérete: -
Felszereltség: -
Parkolás: -
Kilátás: -
Egyéb extrák:  
-

Részletes leírás

Megvételre kínálom ezt a Naszály központi részén elhelyezkedő, tégla építésű, cserépfedésű, 100 m2-es családi házat !A ház nagyon jó elosztású, tágas belső tér jellemzi. 3 egész szoba, 2 tetőtéri félszoba, tágas konyha-étkező, előszoba, közlekedők valamint, szintén tágas fürdőszoba került kialakításra.Az ingatlan összközműves, a fűtést kondenzációs kazán biztosítja, radiátoros hőleadókkal.A nyílászárók is műanyagra lettek cserélve, valamint klímával is felszerelt.A ház és az udvar rendezett, szépen karbantartott, látszik, hogy a tulajdonosok szeretik a virágokat, növényeket.Csodaszép kovácsolt vas kerítés és még csodálatosabb leánder ültetvény fogadja a látogatókat!Garázs , pince és egy kis műhely is rendelkezésre áll.A település Budapesttől 1 órára, Komáromtól és Tatától egyaránt 15 perc alatt megközelíthető autóval.Az egykoron Esterházy tulajdonban lévő Balogh–Esterházy-kastély várja kedves vendégeit esküvők, rendezvények és kastélylátogatás alkalmából!Azt gondolom, hogy ez a ház nagyon jó választás lehet kisebb és nagyobb családoknak egyaránt!Amennyiben szeretné megtekinteni az ingatlant, kérem keressen a megadott elérhetőségen és minden segítséget megkap tőlünk, ami egy ingatlan megvásárlásához elengedhetetlen! Várom hívását!Víz, villany, gáz bevezetésre került.A fűtést egy gázkazán biztosítja radiátoros hőleadókkal, valamint egy vegyestüzelésű kazán is rendelkezésre áll.Az ingatlan per és tehermentes, ami megkönnyíti az adásvételt.

Hirdető adatai

Hirdető neve: Otthon Centrum
Kapcsolattartó: Kovács Erika Ildikó
Hirdető telefonszáma: +36 70 469 3216
Honlap: -