Zala megye, Keszthely


 

Ingatlan adatai

Irányár: 210 000 000 Ft
Típus: kereskedelmi/ipari ingatlan
Kategória: eladó
Alapterület: 551 m2
Fűtés: -
Állapota: -
Szobák száma: -
Építés éve: -
Szintek száma: -
Telekterület: -
Kert mérete: -
Erkély mérete: -
Felszereltség: -
Parkolás: -
Kilátás: -
Egyéb extrák:  
-

Részletes leírás

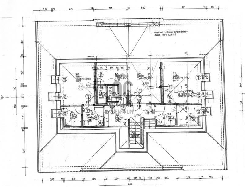
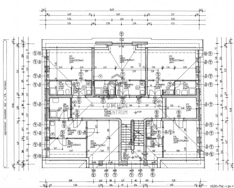
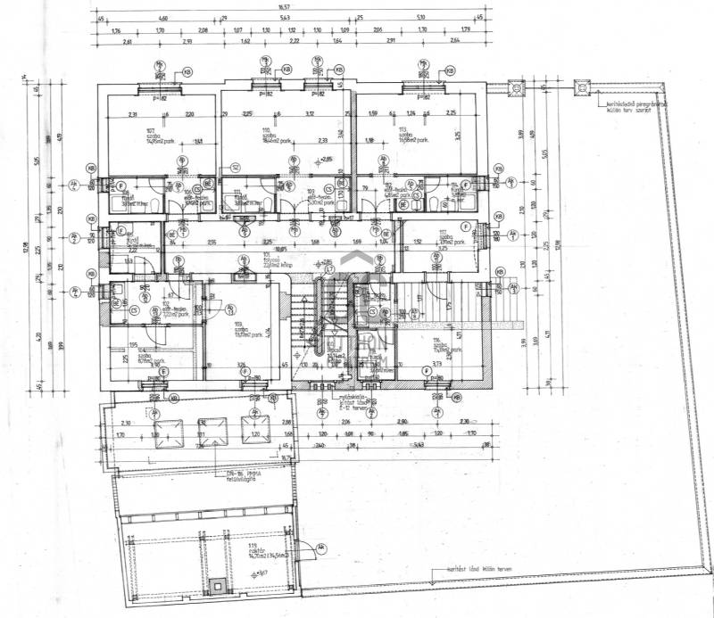
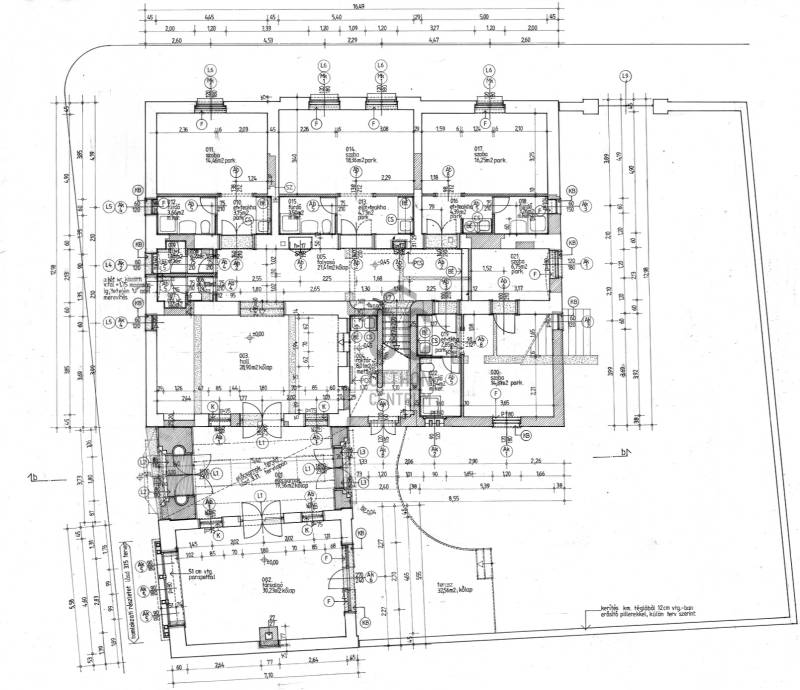
Eladó többlakásos társasháznak alkalmas épület belső udvarral!A jelenleg hotelként már nem üzemelő sarki épület, 2 percnyire Keszthely főterétől, illetve 500 m-re a Balatontól helyezkedik el.Az ingatlan lakóövezetbe esik (Lk-3), így akár lakó projekt is fejleszthető.Az ingatlan főbb paraméterei:- Telek mérete 562 m2;- Összes jelenlegi felépítmény nettó beépített területe 4 szinten: 551 m2;- Szintek: földszint, 2 emelet és tetőtér- Kialakított apartmanok száma: 16 db, melyből 11 db studió és 5 db 1,5 szobás - minden apartmanhoz fürdőszoba és teakonyha tartozik;- Ketben parkolási lehetőség kialakítható.Bővebb információért és a megtekintéssel kapcsolatban hívjon bizalommal!Egyedi igényekre szabott lakás-vállalati hitelekkel állunk rendelkezésére. Bankfüggetlen hitelcentrumunk az országban elérhető összes bank és hitelintézet ajánlatát versenyezteti az Ön számára díjmentesen. Munkatársaink nagy szakmai tapasztalattal várják Önt az előre egyeztetett időpontban akár a normál munkaidő után is.

Hirdető adatai

Hirdető neve: Otthon Centrum
Kapcsolattartó: Heim Dávid
Hirdető telefonszáma: +36 70 412 5811
Honlap: -