Budapest, III.kerület


 

Ingatlan adatai

Irányár: 82 500 000 Ft
Típus: lakás (panel)
Kategória: eladó
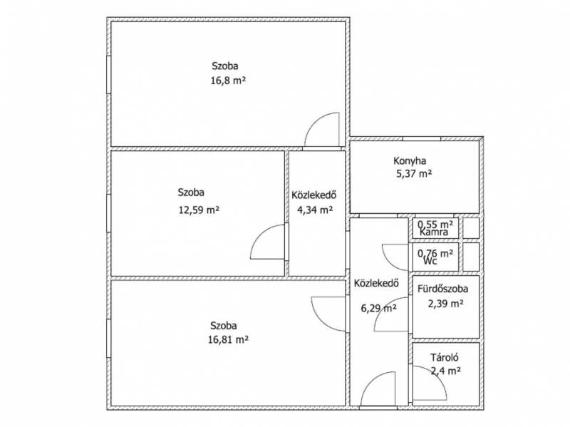
Alapterület: 68 m2
Fűtés: távfűtés
Állapota: -
Szobák száma: 3
Építés éve: 1974
Szintek száma: -
Telekterület: -
Kert mérete: -
Erkély mérete: -
Felszereltség: -
Parkolás: -
Kilátás: utcai
Egyéb extrák:  
-

Részletes leírás

Eladásra kínálunk egy jó állapotú, felújított, 3 szobás panel lakást, Óbuda központi részén.A fürdő és a wc tavaly lett felújítva, az elektromos hálózat, a nyílászárók, a parketta és a konyha pedig korábban.Az ingatlan a 3%-os hitel feltételeinek megfelel!A lakás főbb előnyei és tulajdonságai:- 3 külön nyíló, egész szoba- Keleti fekvés- Klíma van (nappali)- 9. emelet, liftes, nem zárószinti- Biztonsági bejárati ajtó- Gardrób / tároló, ahova a mosgép elhelyezhető- Kamra / spájz- Akár 30 napon belül költözhető (kifizetéstől függően)- Vízórás- Költségek: közös 17 ezer, távhő szintén 17 ezerHa kérdeése van, vagy időpontot egyeztetne megtekintésre, hívjon bizalommal!

Hirdető adatai

Hirdető neve: Otthon Centrum
Kapcsolattartó: Ilcsik Lóránt
Hirdető telefonszáma: +36 70 388 5721
Honlap: -