Budapest, IV.kerület


 

Ingatlan adatai

Irányár: 209 900 000 Ft
Típus: kereskedelmi/ipari ingatlan
Kategória: eladó
Alapterület: 418 m2
Fűtés: -
Állapota: -
Szobák száma: -
Építés éve: -
Szintek száma: -
Telekterület: -
Kert mérete: -
Erkély mérete: -
Felszereltség: -
Parkolás: -
Kilátás: -
Egyéb extrák:  
-

Részletes leírás

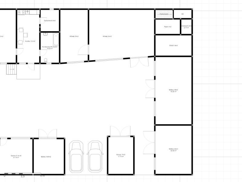
Sokoldalú üzleti ingatlan eladó a 4. kerületben.Budapest IV. kerületében, könnyen megközelíthető helyen kínálunk eladásra egy 1004 m²-es telken elhelyezkedő, több funkcióra alkalmas ingatlant:Lakóépület: nettó 174 m² (jelenleg 3 külön lakás), bruttó 418 m²Gazdasági épület: 244 m² – korábban fémipari tevékenység helyszíneTetőtér: beépíthető, további kb. 150 m² hasznos alapterület kialakíthatóTelek méret: 1004 m²Az ingatlan kiválóan alkalmas cégek számára:irodahelyiségek kialakításárakönnyűipari/termelő tevékenység folytatásárafelvonulási területként vagy logisztikai célokradolgozók elszállásolására (a meglévő lakások és a tetőtér-beépítés révén)A terület adottságai miatt befektetők, vállalkozók, gyártó- vagy szolgáltató cégek számára is ideális választás.Az infrastruktúra kiváló: fő közlekedési útvonalak gyorsan elérhetők, a környék ellátottsága teljes.Sok lehetőséget rejtő ingatlan, amely egyszerre kínál lakhatási, irodai és ipari hasznosítási megoldásokat.

Hirdető adatai

Hirdető neve: Otthon Centrum
Kapcsolattartó: Katona Mátyás
Hirdető telefonszáma: +36 70 469 3036
Honlap: -