Győr-Moson-Sopron megye, Sopron


 

Ingatlan adatai

Irányár: 49 900 000 Ft
Típus: lakás (panel)
Kategória: eladó
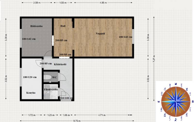
Alapterület: 53 m2
Fűtés: távfűtés
Állapota: -
Szobák száma: 2
Építés éve: 1970
Szintek száma: -
Telekterület: -
Kert mérete: -
Erkély mérete: -
Felszereltség: -
Parkolás: -
Kilátás: utcai
Egyéb extrák:  
-

Részletes leírás

Eladó 2 szoba-hallos, MAGASFÖLDSZINTi lakás Sopron belvárosához közel !- Elhelyezkedés: Sopron, belvárostól mindössze pár perc sétára- Alapterület: 53 nm- Szobák száma: 2 + hall- Környezet: csendes utcában, mindenhez közel. ✅ JELLEMZŐK:- FELÚJÍTANDÓ- CSENDES, parkosított környezet, mégis VÁROSKÖZPONTI elhelyezkedés- PANEL PROGRAMos, hőszigetelt épület, mért távfűtéssel- MŰANYAG, hőszigetelt NYÍLÁSZÁRÓK, nappalin ( déli oldal ) REDŐNY - a pincében SAJÁT, 8 nm-es TÁROLÓ- KEDVEZŐ a lakás REZSIje és a közös költsége - kiváló közlekedés- karbantartott ház - a közösségi terek tiszták, rendezettek- PARKOLÁS a KÖZTERÜLETEN kialakított parkolóhelyeken lehet. ✅ Elhelyezkedés előnyei:Ez a lakás a belváros közvetlen közelében csendes rendezett lakótelepen található, innen pár perc sétával elérhetőek üzletek, iskolák, óvodák, hivatalok, kávézók, szolgáltatások, és a történelmi belváros hangulatos utcái is. Kiváló közlekedés, minden fontos intézmény könnyen megközelíthető, vasútállomás is csak pár perc séta.✅ Kinek lehet ideális?Ajánlott idősebbeknek, akik elsősorban földszinti megoldást keresnek, fiatal pároknak, illetve befektetőknek is kiemelkedő lehetőség frekventált elhelyezkedése miatt.Bővebb információért, megtekintésért, kérem hívjon a megadott elérhetőségeimen!A lakás megvásárláshoz igénybe vehetők, államilag támogatott, vissza nem térítendő támogatások és kedvezményes hitelek. ( OSP, CSOK stb. )Hitelre van szüksége?Az Otthon Centrum az ország egyik legnagyobb és legmegbízhatóbb hitelközvetítőjeként, teljes körű és díjmentes hitelügyintézéssel, biztosításkötéssel áll rendelkezésére!Kérje személyre szabott ajánlatunkat Kollégáinktól!

Hirdető adatai

Hirdető neve: Otthon Centrum
Kapcsolattartó: Németh Zsolt
Hirdető telefonszáma: +36 70 388 5886
Honlap: -