Nógrád megye, Nógrád


 

Ingatlan adatai

Irányár: 58 000 000 Ft
Típus: ház
Kategória: eladó
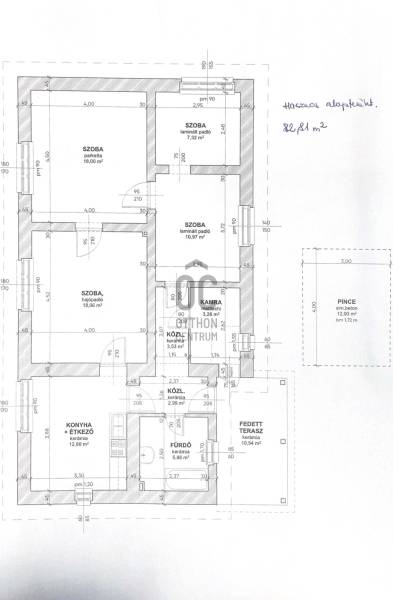
Alapterület: 83 m2
Fűtés: gáz (konvektor)
Állapota: -
Szobák száma: 4
Építés éve: 1965
Szintek száma: -
Telekterület: 984 m2
Kert mérete: 984 m2
Erkély mérete: 11 m2
Felszereltség: -
Parkolás: -
Kilátás: -
Egyéb extrák:  
-

Részletes leírás

Eladásra kínálok egy 1965-ben épült, vályog és tégla építésű családi ház Nógrád községben!A ház jó állapotban van, két utcáról is megközelíthető, összközműves, fa födémes cserépfedésű tetővel, fa nyílászárókkal.A gondozott kertben többféle gyümölcsfa és szőlő található, valamint egy működő gyűrűs kút. A házhoz tartozik egy különálló nyári konyha vagy tároló, pince, fedett autóbeálló.Az ingatlan villanyhálózata 16 A-es főkapcsolattal és éjszakai árammal van ellátva. A meleg vízről villanybojler gondoskodik. Fűtését gázkonvektor és két cserépkályha biztosítja, ez utóbbiak alternatív fűtési lehetőségként szolgálnak.A ház belső elrendezése magában foglal 3,5 szobát, konyhát, fürdőszobát WC-vel, közlekedőt valamint előszobát. A terasz nagy, kertre néző kilátással rendelkezik.A településen elérhető iskola, óvoda, üzletek, orvosi rendelő és gyógyszertár is. A falu legfőbb nevezetessége a Nógrádi vár, emellett számos kirándulási lehetőség kínálkozik a környéken, például a háztól pár perc sétára található vadaspark.Közlekedés szempontjából az ingatlantól mindössze 200 méterre található a kisvasút és a buszmegálló, a Nógrádi vár pedig csak 10-15 perc sétára van.Budapestre autóval körülbelül 60 perc alatt eljuthatunk.Ez az ingatlan ideális lehetőség azok számára, akik vidéki környezetben keresnek jó állapotú, jól felszerelt családi házat, közel a természethez és a kulturális látnivalókhoz.Amivel segítjük az Ön ingatlanvásárlását:-ingyenes, bankfüggetlen hitelügyintézés (CSOK és Babaváró, Otthon Start Hitel ügyintézése is.)-jogi háttér-földhivatali ügyintézés-energetikai tanúsítvány elkészítése-biztosításTovábbi információkért, illetve megtekintéssel kapcsolatban keressen bizalommal a megadott telefonszámon!

Hirdető adatai

Hirdető neve: Otthon Centrum
Kapcsolattartó: Bíró-Csitári Tünde
Hirdető telefonszáma: +36 70 412 5616
Honlap: -