Győr-Moson-Sopron megye, Győr


 

Ingatlan adatai

Irányár: 56 000 000 Ft
Típus: lakás (panel)
Kategória: eladó
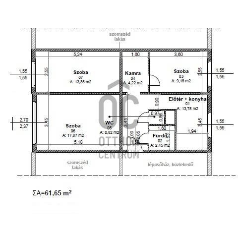
Alapterület: 62 m2
Fűtés: távfűtés
Állapota: -
Szobák száma: 3
Építés éve: 1980
Szintek száma: -
Telekterület: -
Kert mérete: -
Erkély mérete: -
Felszereltség: -
Parkolás: -
Kilátás: utcai
Egyéb extrák:  
-

Részletes leírás

Ritkaság a győri panelpiacon!Adyváros és Nádorváros határán, a Tihanyi Árpád úton eladó egy 2. emeleti, teljeskörűen felújított, szigetelt és fűtéskorszerűsített panel lakás. A panelprogram már ki van fizetve, így ezzel sincs teendő.A 62 m²-es, 3 szobás otthon dupla előszobával rendelkezik, a vezetékek cseréje megtörtént, a nyílászárók műanyagok, redőnyösek. Akár egy tisztasági festéssel költözhető. Szintenként mindössze két lakás található, a lakáshoz saját és közös tároló is tartozik.A közelben bolt, buszmegálló, kórház, gyógyszertár és minden fontos szolgáltatás megtalálható.Hitelre van szüksége?Az Otthon Centrum, az ország egyik legnagyobb és legmegbízhatóbb hitelközvetítője, teljes körű és díjmentes hitelügyintézéssel, valamint biztosításkötéssel segíti ügyfeleit.Kérje kollégáinktól személyre szabott ajánlatát, és találja meg a legjobb megoldást gyorsan és egyszerűen!,

Hirdető adatai

Hirdető neve: Otthon Centrum
Kapcsolattartó: Vincze Attila
Hirdető telefonszáma: +36 70 716 9881
Honlap: -