Pest megye, Tápiószőlős


 

Ingatlan adatai

Irányár: 69 000 000 Ft
Típus: ház
Kategória: eladó
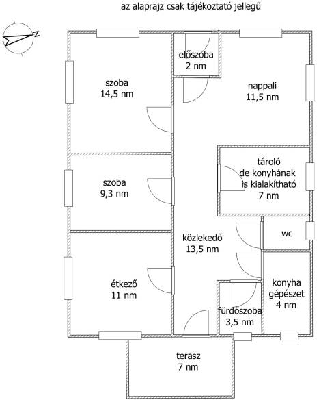
Alapterület: 77 m2
Fűtés: gáz (cirko)
Állapota: -
Szobák száma: 3
Építés éve: 2012
Szintek száma: -
Telekterület: 961 m2
Kert mérete: 961 m2
Erkély mérete: -
Felszereltség: -
Parkolás: -
Kilátás: -
Egyéb extrák:  
-

Részletes leírás

Fedezd fel álmaid otthonát Tápiószőlősön, ahol a modern életstílus találkozik a természet közelségével! Ez a kiváló állapotú, használt ház ideális választás fiatal felnőttek és idősebb házaspárok számára, akik egy csendes, barátságos környékre vágynak, ugyanakkor nem szeretnének lemondani a városi élet előnyeiről. Az ingatlan 77,3 négyzetméteren terül el, és egy tágas, 961 négyzetméteres pakosított telken helyezkedik el, ami lehetőséget biztosít a kertészkedésre vagy akár egy kis szabadtéri pihenésre is. A házban három világos szoba található, amelyek optimális elrendezésének köszönhetően mindenki megtalálhatja a számára legmegfelelőbb teret. A fürdőszoba modern, és a beépített bútorok valamint szekrények révén maximálisan kihasználható a hely. A gáz cirkó fűtés és a klímaberendezés garantálja, hogy a hőmérséklet mindig kellemes legyen, függetlenül az évszaktól. Az ingatlanhoz tartozik egy kandalló is, ami különleges hangulatot varázsol a téli estéken. A környék ellátottsága kiváló, a közeli boltok, és szolgáltatások mindössze néhány percnyi távolságra találhatóak. A kitűnő közlekedési lehetőségeknek köszönhetően könnyedén elérheted a fővárost, így a napi ingázás sem okoz problémát. A település biztonságos és csendes, ideális helyszín a fiatal családok számára. Az automata öntözőrendszerrel rendelkező kert pedig nemcsak szépséget, hanem kényelmet is biztosít, hiszen minimális időráfordítással élvezheted a természetet. A ház Falusi Csok kompatibilis (1 gyermek), így ha családi otthont keresel, ez a lehetőség különösen vonzó lehet számodra. A beépített bútorok és az integrált szúnyogháló pedig a mindennapi élet kényelmét szolgálja. Az ingatlan tehermentes, így gyorsan birtokba veheted, és élvezheted a modern, kényelmes életet. Ha bármilyen kérdésed lenne az ingatlannal kapcsolatban, vagy szeretnéd megtekinteni, ne habozz, keress bizalommal! Az álmaid otthona csak egy lépésre van tőled!

Hirdető adatai

Hirdető neve: Otthon Centrum
Kapcsolattartó: Kozmané Zsiros Krisztina
Hirdető telefonszáma: +36 70 388 5436
Honlap: -