Zala megye, Gyenesdiás


 

Ingatlan adatai

Irányár: 121 900 000 Ft
Típus: ház
Kategória: eladó
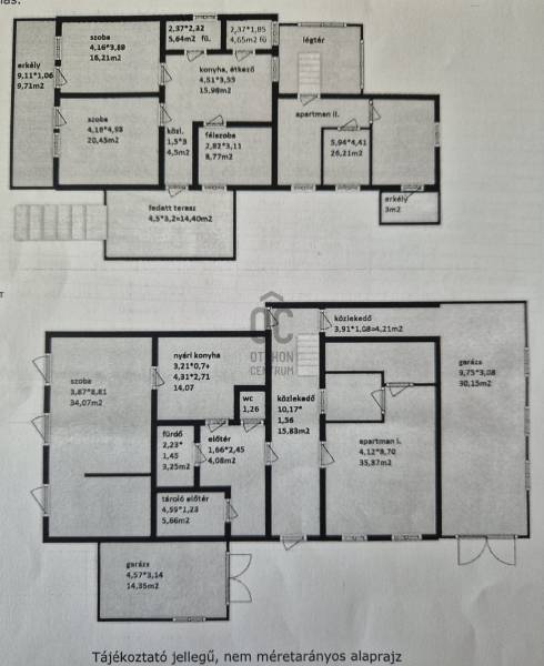
Alapterület: 292 m2
Fűtés: gáz (cirko)
Állapota: -
Szobák száma: 8
Építés éve: 1980
Szintek száma: -
Telekterület: 1 197 m2
Kert mérete: 1 197 m2
Erkély mérete: 12 m2
Felszereltség: -
Parkolás: -
Kilátás: -
Egyéb extrák:  
-

Részletes leírás

GYENESDIÁSON A LIDO ÉS - JÁTÉKSTRANDHOZ NAGYON KÖZEL ELADÁSRA KÍNÁLUNK EGY HANGULATOS CSALÁDI HÁZAT!Az ingatlan több generáció nyugodt együttélésre, illetve apartmanoztatásra is kiváló lehetőség.A telek 1197 nm, minimálisan lejtős, gondozott, gyümölcsfákkal telepített.A ház hasznos területe 292 nm, három lakrészre osztott, két garázs is tartozik hozzá.A három lakrész a következő, szuterén, emelet, és a kert felőli, hátsó lakrész.Összesen 8 szoba, 5 fürdőszoba, 3 konyha, kazánház, tároló áll rendelkezésre.Valamennyi közmű be van vezetve.A fűtés az gáz-cirkóval megoldott.A nyílászárók egy része már műanyag, hőszigetelt.A ház csekély mértékű felújítás után lakható, fizető vendég fogadására viszont nagyobb beruházásra lesz szükség.Amennyiben az ingatlan felkeltette érdeklődését, kérem hívjon bizalommal.

Hirdető adatai

Hirdető neve: Otthon Centrum
Kapcsolattartó: Krauszpek János
Hirdető telefonszáma: +36 70 461 9196
Honlap: -