Pest megye, Szada


 

Ingatlan adatai

Irányár: 99 900 000 Ft
Típus: ház
Kategória: eladó
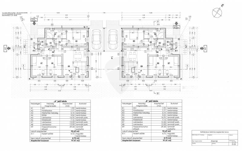
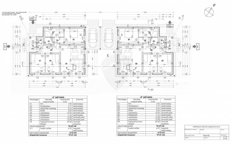
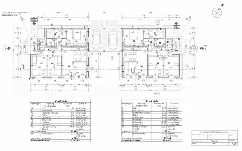
Alapterület: 97 m2
Fűtés: gáz (cirko)
Állapota: új
Szobák száma: 4
Építés éve: 2021
Szintek száma: -
Telekterület: 450 m2
Kert mérete: 450 m2
Erkély mérete: -
Felszereltség: -
Parkolás: -
Kilátás: udvari
Egyéb extrák:  
-

Részletes leírás

Ne maradjon le, a 8 darab ikerházfél egyikéről se! Egy új, modern és tágas lakóingatlant kínálunk eladásra Pest megyében, Szadán a Fenyvesliget utcában. Az ingatlan alapterülete 97 nm, melyhez egy 458 nm-es telek tartozik. Az ingatlan 3 hálószobából, egy amerikai konyhás nappaliból, fürdőszobából, külön mosdoból, háztartási helyiségből, illetve egy fedett gépkocsi beállóból áll.Az ingatlanok közvetlenül NEM érintkeznek, csak a fedett parkoló köti össze az ingatlanokat!Az ingatlan állapota új építésű, így minden részletét az Ön igényeinek megfelelően alakítottuk ki. A fűtést egy 9kw-os BERETTA hőszívattyú fogja biztosítani, mely egy H-tarifás mérőóráról fog üzemelni.Műszaki leírás:• P30N+F téglafal• 10 centis Grafitos szigetelés• 25 centis födém szigetelés• hat légkamrás 3 rétegű műanyag thermo nyílászárók• antracit cserép• elektromos kapu előkészítésA burkolatok és a beltéri ajtók a vállalkozó által biztosított összeghatárig választhatóak:• Hidegburkolat: 5.000.-/m2• Melegburkolat: 5.000.-/m2• Beltéri ajtók: 60.000.-/db• Fürdőkád: 50.000.-• Csaptelepek: 15000.-/dbAz utca csendes és biztonságos környéken található, így ideális otthon lehet családok számára. Az autóval közlekedők számára a közeli autópálya könnyen elérhető, míg a tömegközlekedést igénybe vevőknek a város központjában található buszmegállók állnak rendelkezésre.A környék előnyeit tekintve, számos zöld terület és park található a közelben, így a természet szerelmesei számára is ideális helyszín lehet az ingatlan. Emellett a város központjában számos üzlet, szolgáltatás és étterem található, így a mindennapi élethez szükséges dolgok is könnyen elérhetőek.Ha kérdése merülne fel az ingatlanról, vagy érdeklődne további részletek iránt, bátran keressen minket.AZ INGATLAN CSOK+ KÉPES!Várható befejezés 2026. közepeIntor Ingatlan – Otthont biztonságban!Irodánk rendelkezésére áll az értékesítés első lépésétől, egészen az utolsóig. Amennyiben valamelyik ingatlanunkat jelenlegi ingatlanja értékesítése után kívánja megvásárolni, vagy egy megbízható irodával kívánna együttműködni, amely teljeskörű ügyintézést biztosít, megfizethető áron, forduljon hozzánk bizalommal!

Hirdető adatai

Hirdető neve: Intor Ingatlan Powered By RH
Kapcsolattartó: Kollár Ábel Gergő
Hirdető telefonszáma: +36 70 412 5808
Honlap: -