Budapest, V.kerület


 

Ingatlan adatai

Irányár: 549 000 000 Ft
Típus: lakás (tégla)
Kategória: eladó
Alapterület: 300 m2
Fűtés: gáz (cirko)
Állapota: -
Szobák száma: 10
Építés éve: 1960
Szintek száma: -
Telekterület: -
Kert mérete: -
Erkély mérete: -
Felszereltség: -
Parkolás: -
Kilátás: utcai
Egyéb extrák:  
-

Részletes leírás

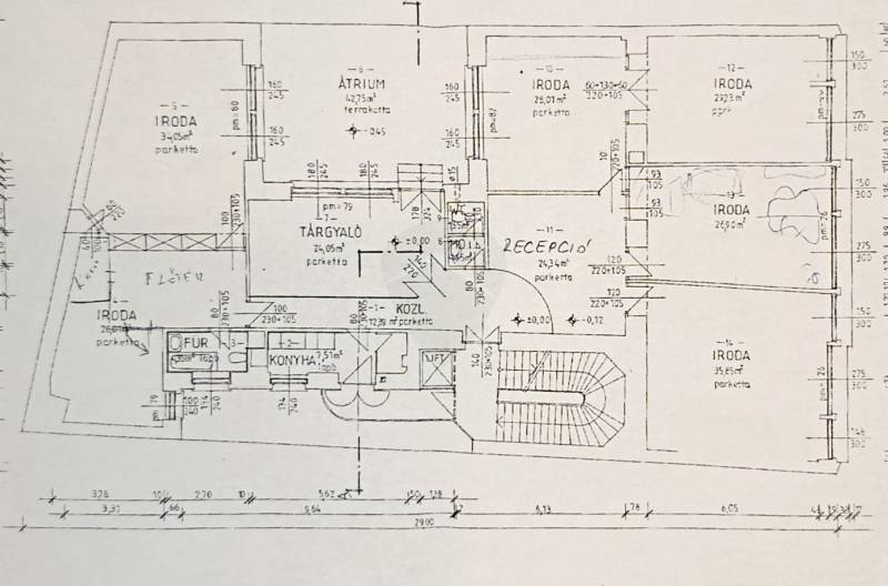
Eladó IRÁNYÁRON egy V.kerületi Lipótváros szívében található, 300 négyzetméteres jelenleg 4.db. HRSZ.-on elhelyezkedő lakás megnevezésű ,teljes emeleti szint, 10 szobás lakóingatlan. Melyet iroda ként hasznosítottak ,de az utóbbi években nem használták.Az ingatlan jó állapotban van, a fűtésről pedig gáz (cirkó) rendszer gondoskodik.A belvárosi lakás világos terekkel és tágas szobákkal -irodákkal rendelkezik, amelyek lehetőséget adnak a különböző elrendezések kialakítására.Az ingatlan rendkívül jól átalakítható ,alkalmas lehet ügyvédi iroda, orvosi rendelő ,több lakásos airbnb ,hostel, művészeti kiállítóterem, oktatási célú iroda, utazási iroda ..........stb. ,és még sorolhatnám a lehetőségeket.Az ingatlanban OPEN HOUSE kerül megrendezésre 2025.10.01. 12-15 - óráig2025.10.02. 14-17 - óráigMinden érdeklődőt szeretettel várunk. Ez az ingatlan nemcsak lakóhely, hanem egy olyan befektetési lehetőség is, amely a jövőbeli értéknövekedés szempontjából is ígéretes. A piaci trendek alapján a belvárosi ingatlanok iránti kereslet folyamatosan növekszik, így Ön egy olyan lehetőséget találhat, amely hosszú távon is megtérülhet.Amennyiben bármilyen kérdése lenne az ingatlannal vagy a vásárlási folyamattal kapcsolatban, bizalommal keressen.

Hirdető adatai

Hirdető neve: Rock Home
Kapcsolattartó: Borsos Balázs
Hirdető telefonszáma: +36 70 467 6795
Honlap: -