Budapest, XI.kerület


 

Ingatlan adatai

Irányár: 93 900 000 Ft
Típus: lakás (tégla)
Kategória: eladó
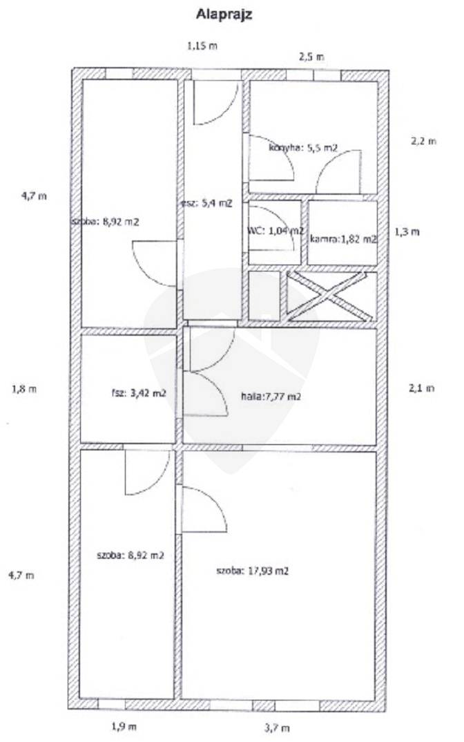
Alapterület: 60 m2
Fűtés: házközponti fűtés
Állapota: -
Szobák száma: 3
Építés éve: 1950
Szintek száma: -
Telekterület: -
Kert mérete: -
Erkély mérete: -
Felszereltség: -
Parkolás: -
Kilátás: utcai
Egyéb extrák:  
-

Részletes leírás

Elegáns otthon várja új tulajdonosát Újbuda szívében!Egy valódi gyöngyszem a dinamikusan fejlődő Újbuda központjában, mindössze 3 perc sétára az Allee Bevásárlóközponttól. Ez a 60 nm-es, felújított lakás egy liftes ház első emeletén található, és az utca felé néző ablakainak köszönhetően rendkívül világos.A lakás elrendezése optimális: a tágas nappalin kívül két külön nyíló szoba és egy külön konyha is helyet kapott, ami praktikussá és kényelmessé teszi a mindennapokat. A felújítás során minden részletre odafigyeltek, így Önnek már csak költöznie kell!A vételár tartalmazza a beépített bútorzatot. Ne hagyja ki ezt a ritka alkalmat, hiszen az ilyen kiváló lokációval és állapotban lévő ingatlanok gyorsan gazdára találnak.Hívjon még ma, és foglaljon időpontot a megtekintésre!

Hirdető adatai

Hirdető neve: Rock Home
Kapcsolattartó: Németi-Loósz Henriett
Hirdető telefonszáma: +36 70 412 5641
Honlap: -