Budapest, XII.kerület


 

Ingatlan adatai

Irányár: 109 900 000 Ft
Típus: lakás (tégla)
Kategória: eladó
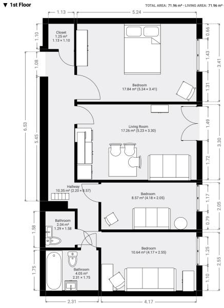
Alapterület: 72 m2
Fűtés: gáz (cirko)
Állapota: -
Szobák száma: 4
Építés éve: 1920
Szintek száma: -
Telekterület: -
Kert mérete: -
Erkély mérete: -
Felszereltség: -
Parkolás: -
Kilátás: utcai
Egyéb extrák:  
-

Részletes leírás

Az ingatlan Budapest egyik legkedveltebb, parkos városrészében található, egy hangulatos régi villaépület emeleti ráépítésében. Az első emeleti lakás DNY-i tájolásának köszönhetően egész nap világos és barátságos tereket kínál, így otthonként, irodaként vagy rendelőként is inspiráló környezetet biztosít.A jelenlegi beosztás nappali + 3 hálószoba és két fürdőszoba, de minden belső fal mozgatható, ezért az alaprajz igény szerint teljesen átalakítható. A fűtést korszerű cirkó kazán biztosítja.A társasház különlegessége a gondozott, vadregényes kert, amely igazi zöld sziget a város közepén. A lakáshoz saját, száraz pincetároló is tartozik – ami ezen a környéken ritka előny. A Városmajori park, a Mammut bevásárlóközpont és a kiváló közlekedési lehetőségek mind néhány perc sétára elérhetők.Főbb jellemzők:- 72 m², 4 szoba- 2 fürdőszoba- Világos, napos DNY-i tájolás- Teljes körű felújítás- Cirkó fűtés- Könnyen alakítható alaprajz (irodai / rendelői funkcióhoz is ideális)- Vadregényes, gondozott kert- Saját, száraz pincetároló- Régi villa ráépítés, 1. emelet- Tehermentes, azonnal költözhetőEz az ingatlan egyedülálló lehetőség: egyszerre kínál békés, zöldövezeti hangulatot és belvárosi közelséget – ideális otthonnak, irodának vagy orvosi rendelőnek is.Várom hívásod a hét minden napján!

Hirdető adatai

Hirdető neve: Rock Home
Kapcsolattartó: Baranyai Eszter
Hirdető telefonszáma: +36 70 467 6769
Honlap: -