Vas megye, Kőszegszerdahely


 

Ingatlan adatai

Irányár: 49 900 000 Ft
Típus: lakás (újépítésű)
Kategória: eladó
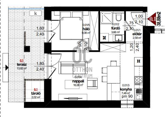
Alapterület: 47 m2
Fűtés: elektromos
Állapota: új
Szobák száma: 2
Építés éve: 2026
Szintek száma: -
Telekterület: -
Kert mérete: -
Erkély mérete: 14 m2
Felszereltség: -
Parkolás: -
Kilátás: udvari
Egyéb extrák:  
-

Részletes leírás

Fedezze fel ezt a rendkívüli lehetőséget, amely tökéletes választás lehet középkorú családok, fiatal párok vagy befektetők számára! Kínálatunkban egy új, kiváló állapotú 47 négyzetméteres lakás található Kőszegszerdahelyen. A modern, prémium kivitelezésű ingatlan tágas nappalival, háló szobával és egy elegáns fürdőszobával rendelkezik, amely minden igényt kielégít. A lakás fűtése elektromos (infra) rendszerrel, míg a hűtésről klímaberendezés gondoskodik, így az év bármely időszakában kellemes hőmérsékletet biztosít. Az Inverteres hűtő/fűtő klíma , hővisszanyerős légcserélő gondoskodik a folyamatos jó minőségű levegőről.Minimális rezsiköltség, hatékony és gyors, egyedi fűtésrendszer, nincsenek közös rezsiszámolások… A lakás különlegessége a 13,84 négyzetméteres terasz, amely közvetlen 51 nm kertkapcsolattal rendelkezik. Ez a zöld oázis ideális helyszínt biztosít a pihenéshez, baráti összejövetelekhez vagy akár egy nyugodt reggeli kávézáshoz. A LED hangulatvilágítás pedig még inkább fokozza a lakás hangulatát, lehetővé téve, hogy otthona mindig a legjobb fényben tündököljön. A környék csendes és biztonságos, ideális választás mindazok számára, akik szeretnék elkerülni a város zaját, miközben könnyen elérhetik a szükséges szolgáltatásokat. A közlekedési lehetőségek is kedvezőek: a közeli nagyvárosok és Ausztria autóval könnyen megközelíthető főbb utak révén. A közeli településeken található boltok, éttermek és szabadidős lehetőségek mind hozzájárulnak ahhoz, hogy az itt lakók mindennapjai kényelmesebbek és élvezetesebbek legyenek. Ez a tehermentes ingatlan nem csupán lakóhely, hanem egy életstílus megtestesítője. A hegyvidéki környezet és a modern megoldások tökéletes harmóniát alkotnak, így Ön is részese lehet ennek az élménynek. Ha bármilyen kérdése merülne fel, vagy szeretne többet megtudni erről a páratlan lehetőségről, bizalommal forduljon hozzánk. Az Ön elégedettsége a legfontosabb számunkra, és örömmel segítünk Önnek a legjobb döntés meghozatalában.Projekt bemutatásaModern megoldások, otthonos kényelem Kőszeg-hegyalján!Kőszegszerdahelyen várja új tulajdonosait 21 lakásos, tégla építésű, szigetelt 2 szintes társasház. A hangulatos, természetközeli környezet, szub-alpoki klíma, Ausztria közelsége mind rendelkezésre áll az itt élők számára.Az épület modern, letisztult stílusával és korszerű technológiájával a jövő otthonkeresőit célozza meg. Minden lakás:- elektromos infra film padlófűtéssel rendelkezik, amely nemcsak kényelmes, de környezetbarát is.- Fokozott szigetelést kapott a padozat, a födém, a lábazat és a homlokzat tekintetében, megfelelve a legszigorúbb szabványoknak.- Háromrétegű, hő- és hangszigetelt nyílászárókkal van felszerelve.-meleg víz ellátást hőszivattyús villanybojler biztosítja- klíma, terasz minden lakásbanA vételár tartalmazza:- szobákban laminált padló 5500 Ft/nmwc: tervrajzok szerinti darabszámban 50.000 Ft/dbmosdószekrény mosdóval: Leziter Cube 60 (ár: 75.000.-)Csap: mosdócsap 15.000 Ft/dbZuhany/kádtöltő csap 25.000 Ft/dbZuhanykabin / kád 150.000 Ft/db- vizes helyiségekben vízálló laminált melegburkolat készül 7000 Ft/nm• Egy saját parkolóhelyet.• Kulcsrakész állapotot burkolatok, kapcsolók dugaljak, szaniterek, beltéri ajtók tartalmazzák.A tárolást szintenként saját tároló segíti korlátozott számban.

Hirdető adatai

Hirdető neve: Otthon Centrum
Kapcsolattartó: Tóth Éva
Hirdető telefonszáma: +36 70 412 5241
Honlap: -