Somogy megye, Zamárdi


 

Ingatlan adatai

Irányár: 119 000 000 Ft
Típus: lakás (tégla)
Kategória: eladó
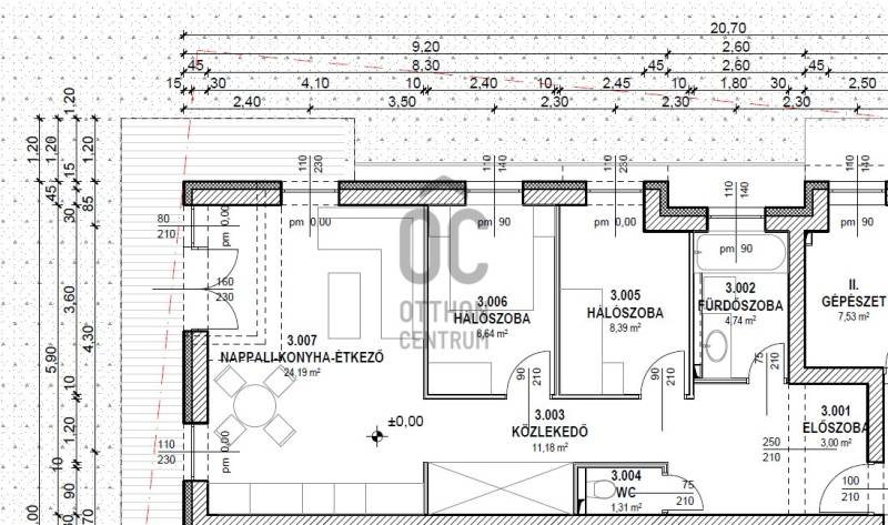
Alapterület: 61 m2
Fűtés: -
Állapota: -
Szobák száma: 3
Építés éve: 2017
Szintek száma: -
Telekterület: -
Kert mérete: -
Erkély mérete: 14 m2
Felszereltség: -
Parkolás: -
Kilátás: udvari
Egyéb extrák:  
-

Részletes leírás

Ha a Balatonhoz költözöl, ne lepődj meg, ha a barátok hirtelen nagyon szeretni kezdenek.Van az a pillanat, amikor az ember rájön: a Balatonhoz járni jó, de ott élni… na, az a jackpot.És most itt a lehetőség: Zamárdiban, mindössze 80 méterre a parttól egy új, modern társasházban kínáljuk ezt a földszinti, kertkapcsolatos lakást.Mit jelent ez a valóságban?– Ha reggel kilépsz a kertedből, nagyjából két perc múlva már kavicsot dobálsz a vízbe.– Ha délután megéhezel, a hekk és a lángos illata szó szerint hazatalál hozzád.– Ha este grillpartit csapsz a teraszon, a szomszédok nem a hangerőt, hanem a receptet kérdezik majd.És mi vár rád bent?61,5 m² jól átgondolt térnappali, konyha, étkező (a hely, ahol mindig több bor fogy, mint étel)két hálószoba (mert a barátoknak is kell hely – de 3 nap után úgyis haza akarják küldeni őket)fürdő és külön WC (a béke záloga minden családban)És mi vár rád kint?14 m²-es terasz saját kertkapcsolattal a nyár nem az erkélyen fér el, hanem a füvön, egy hideg fröccsel a kézben.A házban pedig nemcsak lakások vannak, hanem egy közös belső wellness részleg is. Pontosan. Miközben más a szomszéd fürdőkádban áztatja magát, Önnek jakuzzi jut. Ez az igazi társadalmi különbség.És a technika?Ez nem az a ház, ahol a hőmérővel kell hadakozni. Itt geotermikus hűtő-fűtő rendszer, padlófűtés és mennyezethűtés dolgozik Ön helyett.A redőnyök elektromosak – így amikor vendégek jönnek, eljátszhatja a „menő házigazda” szerepet egy gombnyomással.És az egész épület A+ energiaosztályú, tehát a rezsi nem fogja kicsavarni a kezéből a borospoharat.Hol van mindez?Zamárdi, a Balaton egyik legélhetőbb települése. A ház közelében szabadstrand, bolt, fagyizó és vasútállomás. Tehát, ha akar, autó nélkül is simán boldogul, ha pedig bulit szeretne, a fesztivál úgyis megtalálja.

Hirdető adatai

Hirdető neve: Otthon Centrum
Kapcsolattartó: Bezzeg Nikoletta
Hirdető telefonszáma: +36 70 716 8431
Honlap: -