Zala megye, Galambok


 

Ingatlan adatai

Irányár: 16 900 000 Ft
Típus: nyaraló
Kategória: eladó
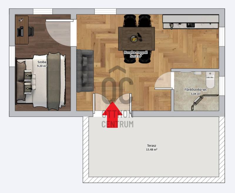
Alapterület: 32 m2
Fűtés: egyéb
Állapota: -
Szobák száma: 2
Építés éve: 1908
Szintek száma: -
Telekterület: 6 363 m2
Kert mérete: 6 363 m2
Erkély mérete: 13 m2
Felszereltség: -
Parkolás: -
Kilátás: -
Egyéb extrák:  
-

Részletes leírás

Megvételre kínálom ezt az 1908-ban épült, vályog falazatú tömésházat Galambokon!Az ingatlanhoz összesen 6363 m2 telekterület tartozik, mely két oldalról is megközelíthető!A területen található egy félkész állapotban lévő ingatlan is. INGATLAN ELHELYEZKEDÉSE:- Zalakaros 6 km, míg Nagykanizsa 14 km-re található.- Buszmegálló 2 perc sétatávolságra a háztól.- Csendes, nyugodt, zöld környezet.HÁZ LEÍRÁSA:- Alápincézett- Vályog falazatú tömésház.- Nettó 32,4 m2.- Felosztása: 1 szoba, fürdő-wc, és egy konyha-nappali.- Nyílászárói fa szerkezetűek.- A meleget egy fa tüzelésű kályha biztosítja.- Teteje cseréppel fedett.- Belmagasság: 250 cmIrodánk teljes körű, ingyenes szolgáltatást nyújt kereső ügyfeleinknek. Szakszerű tanácsadással, hitel ügyintézéssel, energetikai tanúsítvány elkészítésével és kedvező díjszabású ügyvéddel nyújtunk segítséget!Várom HÍVÁSÁT a hét minden napján!

Hirdető adatai

Hirdető neve: Otthon Centrum
Kapcsolattartó: Latin Richárd
Hirdető telefonszáma: +36 70 412 3621
Honlap: -