Hajdú-Bihar megye, Debrecen


 

Ingatlan adatai

Irányár: 188 520 000 Ft
Típus: ház
Kategória: eladó
Alapterület: 157 m2
Fűtés: -
Állapota: új
Szobák száma: 5
Építés éve: 2026
Szintek száma: -
Telekterület: 660 m2
Kert mérete: 660 m2
Erkély mérete: 14 m2
Felszereltség: -
Parkolás: -
Kilátás: -
Egyéb extrák:  
-

Részletes leírás

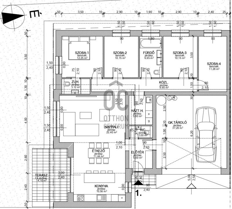
Eladó Nagymacson, a BMW-től 1 percre, új építésű, 157 m2-es, nappali-amerikai konyha-étkező + 4 külön nyíló szobás, dupla garázsos ikerház, 660 m2 telekkel, az alábbiak szerint:> földszintes kivitelezésben, nagy és világos terek> a nappali-konyha-étkező rész önmagában 44 m2, amihez kapcsolódik a félig fedett 14 m2-es terasz> a hőszivattyús fűtés elektromos igényét teljes egészében fedezi az 5 kW-os napelem rendszer, ezért az épület fenntarthatósága kiváló> 2 fürdőszoba és 3 WC biztosítja a reggeli készülődés zökkenőmentességét> mind a 4 hálószoba külön nyílik és jól szeparált a nappali résztől, ezért a nyugodt pihenés garantált> a szekcionált garázskapu is hőszigetelt, elektromos távirányítóval szerelt> térkőburkolat, tereprendezés, füvesítés> választható burkolatok színben és anyagban is (járólap-vinyl-laminált parketta)> igény szerint a teraszhoz előtető rendelhető> vételár tartalmazza az oldalsó- , utcafronti- , hátsó kerítés kialakításának a költségét, valamint az utcafronti elektromos, távírányítós nagykapu árát is> a burkolatok mellett a beltéri ajtók is választhatókRészletes műszaki tartalomért, további információkért, megtekintési időpontért hívja kollégánkat a hét minden napján!

Hirdető adatai

Hirdető neve: Otthon Centrum
Kapcsolattartó: Eitler Péter
Hirdető telefonszáma: +36 70 716 9546
Honlap: -