Pest megye, Abony


 

Ingatlan adatai

Irányár: 7 500 000 Ft
Típus: telek
Kategória: eladó
Alapterület: 701 m2
Fűtés: -
Állapota: -
Szobák száma: -
Építés éve: -
Szintek száma: -
Telekterület: 701 m2
Kert mérete: -
Erkély mérete: -
Felszereltség: -
Parkolás: -
Kilátás: -
Egyéb extrák:  
-

Részletes leírás

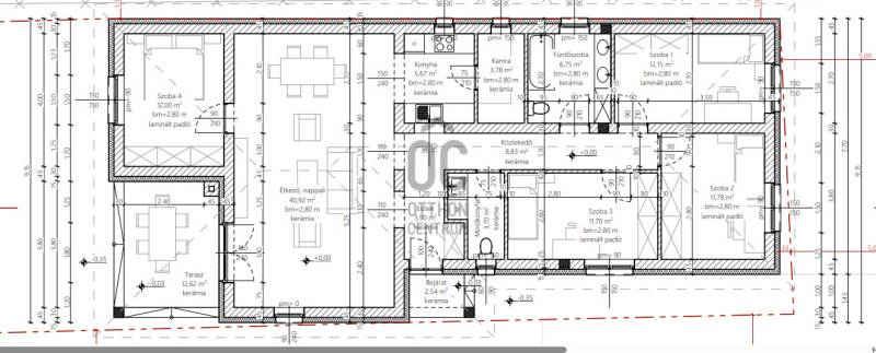
Eladó telek Abonyban családi ház építésére vonatkozó dokumentációval!Abonyban kínálok Lf-1 övezetbe tartozó telket eladásra, a Helyi Építési Szabályzat szerinti paraméterek lentebb!- utcafront 14,5 m- gázcsonk és csatorna csonk a telken belül- az alap kitűzés megtörtént- a hirdetési ár tartalmazza: INGATLANRA TERVEZETT LAKÓÉPÜLETEGYSZERŰ BEJELENTÉSI TERVDOKUMENTÁCIÓ-ját alaprajzzal, műszaki leírással, minden egyébbelBelső helyiségek tervezett mérete összesen: 121,18 nmTervezett teraszokkal együtt összesen: 136,34 nm(1)Lf-1 jelű építési övezet előírásai:a)Beépítési módaa) oldalhatáron állóab)18 méternél szélesebb és saroktelek esetén: szabadon állób)Kialakítható legkisebb telekterület (m2)700c)A beépítésnél alkalmazható terepszint feletti legnagyobb beépítettség (%)30d)A beépítésnél alkalmazható legnagyobb épületmagasság (m)5,0e)A beépítésnél alkalmazható legkisebb zöldfelületi arány (%)40f)A közműellátás mértéke:teljes(2)Az építési övezetben elhelyezhető épület a vonatkozó jogszabályi előírásokon túlmenőena)melléképület,b)kézműipari épület legfeljebb nettó 40 m2 alapterületű főrendeltetésű helyiséggel lehet.(3)Az építési övezetben minden terepszint alatti építmény elhelyezhető.(4)Az építési övezetben melléképület a (2) bekezdésben foglaltak figyelembevételével elhelyezhető, az alábbi szabályok alkalmazásával:a)a lakóépülettel azonos oldalhatáron a főépülettel legfeljebb azonos épületmagassággal építhető,b)két 30,00 m telekmélységet el nem érő telkek csatlakozásánál a hátsókert mérete 0,00 m, ebben az esetben a melléképületek egymással tűzfalasan összeépíthetők, amennyiben az egyik telken létesül melléképítmény, akkor az csak tűzfalas kialakítással helyezhető el.(5)Melléképítmények tekintetében az alábbiak helyezhetők el:a)közműcsatlakozási vagy -pótló műtárgyb)hulladéktartály-tárolóc)kerti építményd)háztartási célú kemence, húsfüstölő, jégverem, zöldségvereme)állatkifutóf)trágyatároló, komposztálóg)siló, ömlesztett anyag-, folyadék- és gáztárolóh)építménynek minősülő antennatartó szerkezet, zászlótartó oszlop.Irodánkban bankfüggetlen hitel-közvetítéssel állunk ügyfeleink rendelkezésére!A hirdetésben szereplő információkat a megbízótól kaptuk, irodánk azokért felelősséget nem vállal!

Hirdető adatai

Hirdető neve: Otthon Centrum
Kapcsolattartó: Bakos-Dósa Ildikó
Hirdető telefonszáma: +36 70 716 9956
Honlap: -