Budapest, V.kerület


 

Ingatlan adatai

Irányár: 398 000 000 Ft
Típus: lakás (tégla)
Kategória: eladó
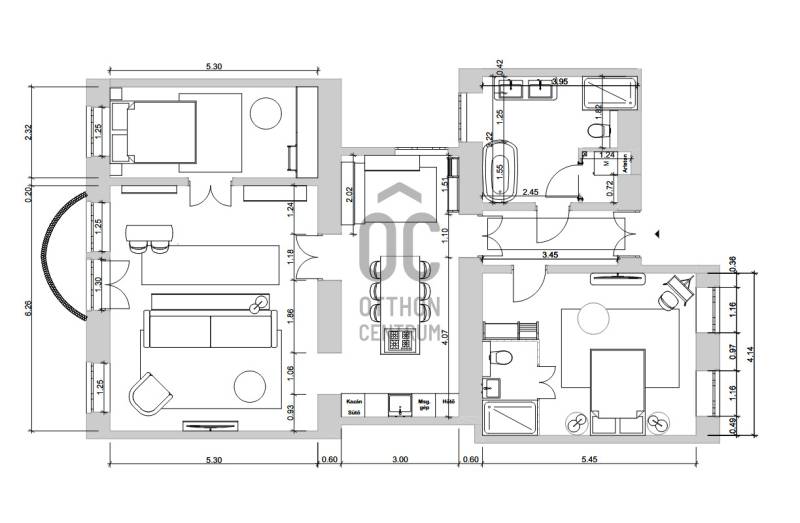
Alapterület: 103 m2
Fűtés: gáz (cirko)
Állapota: -
Szobák száma: 3
Építés éve: -
Szintek száma: -
Telekterület: -
Kert mérete: -
Erkély mérete: 3 m2
Felszereltség: -
Parkolás: -
Kilátás: utcai
Egyéb extrák:  
-

Részletes leírás

ELADÓ UTCAI NÉZETŰ, ERKÉLYES, 2 HÁLÓSZOBÁS NAGYPOLGÁRI LAKÁS AZ V. KERÜLET EGYIK LEGKIEMELTEBB RÉSZÉN!A LAKÁSBAN A KLASSZIKUS ÉS BOHÉM RÉSZLETEK SIMULNAK ÖSSZE ELEGÁNS EKLEKTIKÁBAN ÚJRAÉRTELMEZVE EZZEL A NAGYPOLGÁRI STÍLUST.A lakás Budapest történelmi belvárosának egyik legszebb macskaköves utcájában található, egy 130 éves műemlékvédelem alatt álló ház második emeletén.A lakás teljes körű felújításon esett át, lakberendező által tervezett exkluzív belsőépítészeti megoldásokkal és berendezéssel. A felújítás során teljes műszaki és esztétikai csere történt a legmagasabb minőségben az alapoktól.-Teljes elektromos hálózat csere-Korszerű gáz cirkó fűtés, és új radiátorok kiépítése (Viessmann kazán)-Hűtő/fűtő klíma kialakítása-Teljes vízvezeték csere és új fürdőszobák kialakításaA nyílászárók az épület eredeti borovi fenyő ablakai, melyek az eredeti állapotában restaurálásra kerültek és kétrétegű hővédő üvegezéssel lettek ellátva. A falak az épület és a lakás korszellemének megfelelően elegáns díszítést kaptak, valamint az előszobában és a konyhában angol fal fa burkolat lett kialakítva.A konyhabútor egyedileg gyártatott, AEG illetve Electrolux konyhagépekkel felszerelt, valódi kő konyhapulttal, gránit mosogató medencével. A konyhában beépített víztisztító adagolja a konyhai csaptelepen keresztül az ivóvizet.Két külön fürdőszoba került kialakításra, a kisebb közvetlen hálószoba kapcsolattal rendelkezik. A nagyobbik fürdőszoba az otthoni wellness szerepét tölti be, tágas méretei, a szabadon álló fürdőkád, és az egyedi épített zuhanyzó a relaxációnak ad teret. Itt található egy külön háztartási helyiség is, ahol helyt kapott a mosógép és egy plusz bojler gondoskodik a kifogyhatatlan meleg víz ellátásról.A kisebbik hálószoba az utcára néz, mégis csendes a második emeleti elhelyezkedésének köszönhetően. Az egyik falán padlótól mennyezetig egy hatalmas gardrób szekrény került beépítésre.A nagyobbik hálószoba udvari nézetű, és jól szeparált, saját fürdővel, akár egy kis önálló apartman az ingatlanban.A lakás alapterülete: 103 m2 + az erkély mérete.A közös költség: 42.000 Ft, mely tartalmazza a vízfogyasztást.A lakás közvetlen közelében az Egyetem tér, a Váci utca, a Vásárcsarnok, és a Duna-part.Számtalan étterem, kávézó, és bár, valamint bevásárlási lehetőség található karnyújtásnyira az ajtón kilépve.A parkolás helyi lakos kártyával ingyenesen a közterületen biztosított, vagy lehetőség van mélygarázs bérlésére a környéken.További információért és megtekintés miatt keressen bizalommal a hét bármely napján!

Hirdető adatai

Hirdető neve: Otthon Centrum
Kapcsolattartó: Szvett Bianka
Hirdető telefonszáma: +36 70 388 5846
Honlap: -