Budapest, VI.kerület


 

Ingatlan adatai

Irányár: 140 000 000 Ft
Típus: lakás (tégla)
Kategória: eladó
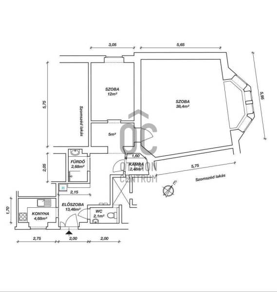
Alapterület: 81 m2
Fűtés: gáz (cirko)
Állapota: -
Szobák száma: 2
Építés éve: -
Szintek száma: -
Telekterület: -
Kert mérete: -
Erkély mérete: -
Felszereltség: -
Parkolás: -
Kilátás: utcai
Egyéb extrák:  
-

Részletes leírás

Eladó egy 81 m²-es, 2 szobás lakás a Teréz körút egyik legszebben karbantartott, liftes épületének 3. emeletén. A lakás különlegessége a tágas terek és a nagy ablakok, amelyek egész nap természetes fénnyel töltik meg a helyiségeket. A város lüktetése csupán pár lépésre van, mégis meglepően nyugodt, csendes hangulat jellemzi az ingatlant.AZ INGATLANRÓL:A 81 négyzetméteres alapterület jól kihasználható, a két szoba külön bejáratú, így a lakás tökéletes választás lehet akár otthonnak, akár befektetésnek.A tágas nappali és a nagyméretű ablakok világos, levegős teret teremtenek, amely könnyen alakítható egyedi igények szerint.A HÁZRÓL:A ház igényesen karbantartott, klasszikus polgári épület, amely megőrizte eredeti eleganciáját, miközben folyamatosan gondozott és korszerűen fenntartott.A liftes lépcsőház rendezett és tiszta, a lakóközösség csendes, figyelmes.A ház külső és belső állapota is rendezett, így a lakás egy stabil, gondozott épületben helyezkedik el.A KÖRNYÉKRŐL:Az Oktogon és a Nyugati tér néhány perc sétával elérhető, a 4–6-os villamos, a metró és több buszjárat is könnyen megközelíthető. A mindennapi élethez szükséges üzletek, éttermek, kávézók és szolgáltatások a közelben vannak, így minden kényelmesen elérhető gyalogosan is.Ha szereted a városi pezsgést, ugyanakkor igényled a belső nyugalmat és a stílusos otthont, akkor ez a lakás tökéletes választás lehet.Egyedi igényekre szabott lakáshitelekkel állunk rendelkezésére. Bankfüggetlen Hitel Centrumunk az országban elérhető összes bank és hitelintézet ajánlatát versenyezteti az Ön számára díjmentesen.Munkatársaink nagy szakmai tapasztalattal várják Önt az előre egyeztetett időpontban akár a normál munkaidő után is.

Hirdető adatai

Hirdető neve: Otthon Centrum
Kapcsolattartó: Simkó Virág
Hirdető telefonszáma: +36 70 461 9366
Honlap: -