Tolna megye, Paks


 

Ingatlan adatai

Irányár: 29 900 000 Ft
Típus: lakás (tégla)
Kategória: eladó
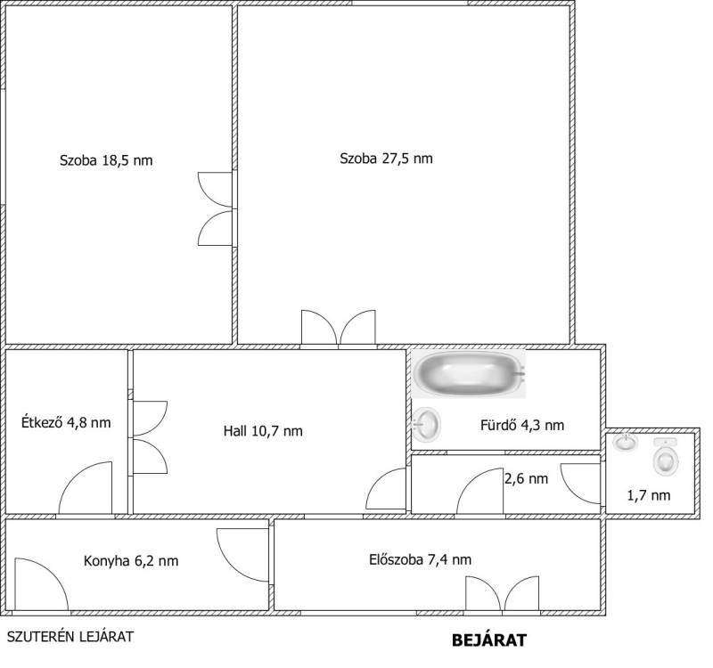
Alapterület: 114 m2
Fűtés: egyéb
Állapota: felújítást igényel
Szobák száma: 2
Építés éve: 1960
Szintek száma: -
Telekterület: -
Kert mérete: -
Erkély mérete: -
Felszereltség: -
Parkolás: -
Kilátás: utcai
Egyéb extrák:  
-

Részletes leírás

Pakson földszinti téglalakás eladó.Szereti a polgári jellegű ingatlaokat 3 m fölötti belmagassággal? Pakson keres lakást, amit a saját igényének megfelelően alakíthat? Megtalálta!Ez az otthon fiataloknak és idősebbeknek is kitűnő választás lehet.Az ingatlan főbb jellemzői:- az óváros szívében található, öt lakásos társasházban ahol kedves, csendes emberek laknak- tulajdoni lapon szereplő mérete 114 nm- tartozik hozzá egy aknás garázs is udvarban, mely 31 nm- fűtése vegyestüzelésű kazárnról megoldott- nyílászárók fából készültek- ipari áram van- a lakás felújítandó- a palatető már Gerard tetőlemezes fedést kapott- lokációját tekintve csendes utcában helyezkedik el, a főutcától pár perc sétatávolságraHa személyesen is megtekintené akkor keressen bizalommal!Teljes körű pénzügyi megoldások ügyintézése díjmentesen:* Bankfüggetlen hitelcenterünk díjmentesen versenyezteti minden bank és hitelintézet ajánlatát.* Önnek nincs más dolga, mint beszélgetni munkatársunkkal, majd a megversenyeztetett ajánlatokból kiválasztani a hosszútávon is a legmegfelelőbb konstrukciót.* Szakértőnk több mint 20 éves szakmai tapasztalattal és egyedi igényekre szabott, fogyasztóbarát lakáshitelekkel, babaváró hitellel, teljes körű CSOK ügyintézéssel várja Önt.* Előre egyeztetett időpontban.Pakson földszinti téglalakás eladó

Hirdető adatai

Hirdető neve: Otthon Centrum
Kapcsolattartó: Baranyi Mónika
Hirdető telefonszáma: +36 70 388 5776
Honlap: -