Budapest, VII.kerület


 

Ingatlan adatai

Irányár: 99 900 000 Ft
Típus: lakás (tégla)
Kategória: eladó
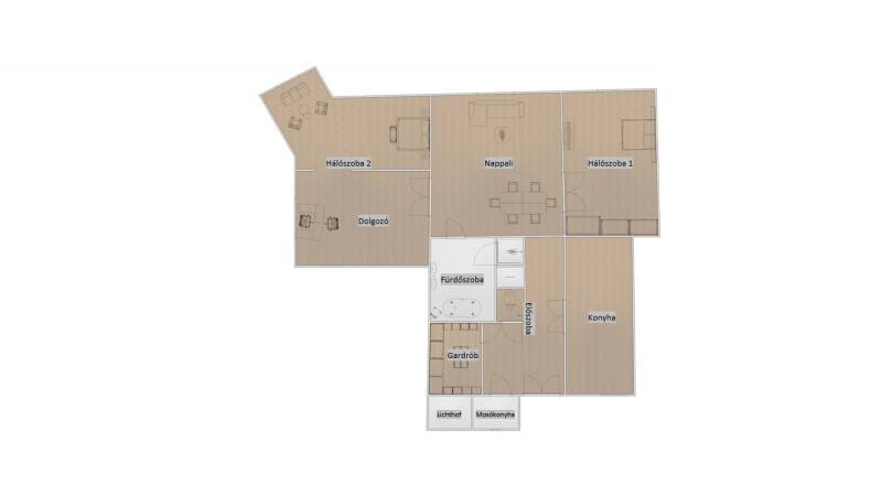
Alapterület: 108 m2
Fűtés: gáz (cirko)
Állapota: -
Szobák száma: 4
Építés éve: 1930
Szintek száma: -
Telekterület: -
Kert mérete: -
Erkély mérete: -
Felszereltség: -
Parkolás: -
Kilátás: utcai
Egyéb extrák:  
-

Részletes leírás

Eladó nagypolgári lakás a belváros közelében, kiváló lehetőség!Kivételes ajánlat a belváros szomszédságában!Eladásra kínálunk egy igazán nagypolgári hangulatú, tágas és világos lakást, mely dél-nyugati tájolásának köszönhetően egész nap fényárban úszik.A lakás elhelyezkedése ideális: Közel a belvároshoz, mégis nyugodt környezetben, elsőrangú közlekedési kapcsolatokkal.Tökéletes választás családoknak, fiatal pároknak, de akár befektetőknek is, hiszen elhelyezkedése és adottságai miatt hosszú távon is értékálló.Ez az ingatlan nem csupán egy lakás, hanem egy életérzés, a klasszikus polgári miliő és a modern városi kényelem tökéletes harmóniája.Ne hagyja ki ezt a lehetőséget, ritkán adódik ilyen vonzó ajánlat a belváros közelében!

Hirdető adatai

Hirdető neve: Otthon Centrum
Kapcsolattartó: Kucsera Gábor
Hirdető telefonszáma: +36 70 716 8246
Honlap: -