Budapest, VII.kerület


 

Ingatlan adatai

Irányár: 109 900 000 Ft
Típus: lakás (tégla)
Kategória: eladó
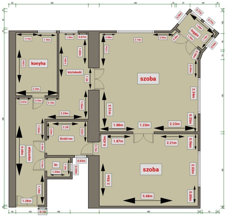
Alapterület: 82 m2
Fűtés: gáz (cirko)
Állapota: felújítást igényel
Szobák száma: 2
Építés éve: 1910
Szintek száma: 1
Telekterület: -
Kert mérete: -
Erkély mérete: -
Felszereltség: -
Parkolás: -
Kilátás: utcai
Egyéb extrák:  
-

Részletes leírás

Különleges, napfényes saroklakás a belváros szívében – Erzsébet körút és Király utca találkozásánál!Eladó egy első emeleti, 82 m²-es, páratlan adottságokkal rendelkező saroklakás Budapest egyik legfrekventáltabb pontján, az Erzsébet körút és a Király utca kereszteződésénél.A lakás minden ablaka utcára néz, így egész nap napfényben úszik, páratlan kilátással a körút pezsgő életére. A 4 méteres belmagasság és a nagy terek elegáns, tágas érzetet biztosítanak.Jelenlegi kialakítása lehetővé teszi egy amerikai konyhás nappali + 2 hálószobás otthon megtervezését, amely akár családi lakásként, akár reprezentatív irodaként is tökéletes választás.Az ingatlan első emeleti, liftes házban található, a társasház jó állapotú és rendezett.Egy valódi belvárosi ékszerdoboz, amely a felújítást követően modern, karakteres otthonná válhat Budapest egyik legikonikusabb helyszínén!ID: 389035

Hirdető adatai

Hirdető neve: GDN Ingatlanhálózat
Kapcsolattartó: Hallai Mónika
Hirdető telefonszáma: +36-30-649-5546
Honlap: -