Győr-Moson-Sopron megye, Fertőszentmiklós


 

Ingatlan adatai

Irányár: 79 900 000 Ft
Típus: lakás (tégla)
Kategória: eladó
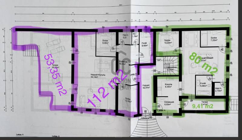
Alapterület: 80 m2
Fűtés: -
Állapota: -
Szobák száma: 3
Építés éve: 2023
Szintek száma: -
Telekterület: -
Kert mérete: -
Erkély mérete: 9 m2
Felszereltség: -
Parkolás: -
Kilátás: udvari
Egyéb extrák:  
-

Részletes leírás

2023-ban épült, mindössze 5 lakásos társasházban kíerül eladásra a 71 m2 lakószinttel és 9,41 m2 -es erkéllyel rendelkező lakás.A lakás nappali–étkező, konyha, 2 hálószoba, fürdőszoba, háztartási helyiség és erkély elosztással rendelkezik.KIEMELKEDŐ MŰSZAKI TARTALOM38 cm-es főfalak + 15 cm-es külső hőszigetelés10 cm-es belső, páraáteresztő, de nem légáteresztő kétkomponensű hab – egyedülálló hang- és hőszigetelés3 rétegű üvegezésű nyílászárók, antracit alumínium redőnyökkel és szúnyoghálóval, elektromos előkészítésselTömör fa beltéri ajtók, acél biztonsági bejárati ajtóElektromos ujjlenyomat-olvasós beléptetésElektromos padlófűtés + hűtő-fűtő klímaOkosotthon rendszer digitális vezérlésselTOVÁBBI ELŐNYÖKÁtadáskor a lakást modern konyhával, minőségi csaptelepekkel és friss festéssel veheti birtokba.Zárt udvari parkoló, mely lakásonként minimum 3 autó számára biztosít helyetCsendes, lakóparki környezet, mégis kiváló közlekedés – buszmegálló és vasútállomás sétatávolságraEz az ingatlan a modern technológia, a biztonság és a minőségi kivitelezés találkozása.Érdeklődj telefonon, és egyeztess időpontot a megtekintésre – érdemes személyesen is megismerni!A LAKÁS KÉSZPÉNZZEL VÁSÁROLHATÓ MEG!Hitelre van szüksége?Az Otthon Centrum az ország egyik legnagyobb és legmegbízhatóbb hitelközvetítőjeként, teljes körű és díjmentes hitelügyintézéssel, biztosításkötéssel áll rendelkezésére!Kérje személyre szabott ajánlatunkat Kollégáinktól!

Hirdető adatai

Hirdető neve: Otthon Centrum
Kapcsolattartó: Bolla László
Hirdető telefonszáma: +36 70 412 4021
Honlap: -