Baranya megye, Szigetvár


 

Ingatlan adatai

Irányár: 34 900 000 Ft
Típus: lakás (tégla)
Kategória: eladó
Alapterület: 105 m2
Fűtés: elektromos
Állapota: -
Szobák száma: 3
Építés éve: 1920
Szintek száma: -
Telekterület: -
Kert mérete: -
Erkély mérete: -
Felszereltség: -
Parkolás: -
Kilátás: utcai
Egyéb extrák:  
-

Részletes leírás

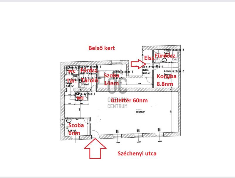
Eladásra kínálok Szigetváron lévő ingatlant!Az ingatlan teljes körűen felújított, nettó 106 m²-es, prémium kivitelezésű.Az ingatlanban új elektromos- és vízvezetékek és csatorna rendszer, új nyílászárók, elektromos padlófűtés.Főbb jellemzők:• Teljes körű műszaki és esztétikai felújítás• Padlófűtés minden helyiségben• Új nyílászárók• Szerelőaknás garázs• Külön használatú kert• Utcára és belső udvarra is néz• Földszintes kettő külön nyíló házrészTulajdonlapon 4 szobás ingatlan, amit a tulaj az alaprajzon látható módon átalakított. Hívjon bizalommal és nézze meg személyesen az ingatlant!

Hirdető adatai

Hirdető neve: Otthon Centrum
Kapcsolattartó: Horváth Jennifer Laura
Hirdető telefonszáma: +36 70 412 3606
Honlap: -