
| Irányár: | 99 990 000 Ft |
| Típus: | lakás (újépítésű) |
| Kategória: | eladó |
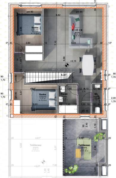
| Alapterület: | 75 m2 |
| Fűtés: | - |
| Állapota: | új |
| Szobák száma: | 3 |
| Építés éve: | 2025 |
| Szintek száma: | - |
| Telekterület: | - |
| Kert mérete: | - |
| Erkély mérete: | 17 m2 |
| Felszereltség: | - |
| Parkolás: | - |
| Kilátás: | udvari |
| Egyéb extrák: | |
| - | |