Budapest, II.kerület


 

Ingatlan adatai

Irányár: 259 000 000 Ft
Típus: lakás (tégla)
Kategória: eladó
Alapterület: 156 m2
Fűtés: gáz (cirko)
Állapota: -
Szobák száma: 5
Építés éve: 2000
Szintek száma: -
Telekterület: -
Kert mérete: -
Erkély mérete: -
Felszereltség: -
Parkolás: -
Kilátás: utcai
Egyéb extrák:  
-

Részletes leírás

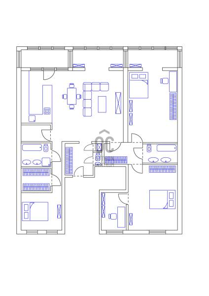
Az I. és II. kerület határán, a Batthyány tér és a Széll Kálmán tér között kínálunk eladásra egy 156 m²-es, átgondolt elrendezésű, teraszos, városi panorámás lakást modern épületben!A lakás leírásaEz a kifinomult, 5 szobás otthon egy gondosan karbantartott, liftes társasház teljes 5. emeletét foglalja el.-A belső terek elegáns stílusa és a praktikus megoldások tökéletes harmóniát alkotnak – minden készen áll a kényelmes mindennapokra.-A tágas nappali modern, beépített konyhával és étkezőrésszel ideális helyszín családi vacsorákhoz vagy baráti összejövetelekhez.-Három külön bejáratú hálószoba biztosítja a maximális privát szférát.-Egy dolgozószoba / vendégszoba tökéletes otthoni munkához.-Két teljes értékű fürdőszoba káddal, zuhannyal és dupla mosdóval, valamint egy külön vendég-WC növeli a kényelmet.-Egy gardróbszoba és külön mosókonyha segíti a rendezettséget és praktikusságot.-Az ablakokból lenyűgöző panoráma nyílik a városra és Buda zöld dombjaira.Rugalmas alaprajz és befektetési lehetőségA tulajdoni lap szerint az ingatlan három különálló lakásból áll (91 m², 46 m² és 19 m²), mindegyik önálló helyrajzi számon.Ez számos lehetőséget kínál:az eredeti három lakás visszaállítása,két nagyobb lakás kialakítása,vagy a jelenlegi, egybenyitott luxus családi rezidencia megtartása.Négy különböző alaprajz-változat áll rendelkezésre, amelyek bemutatják a lehetséges elrendezéseket.Ideális választás befektetőknek és kényelmet, rugalmasságot kedvelő családoknak egyaránt.Saját garázs a VízivárosbanA ház pince szintjén található egy 27 m²-es helyiség utcai bejárattal.A helyiség „műhely” megnevezésű, közművesített (villany, víz, gáz), jelenleg garázsként funkcionál, de műhelyként vagy tárolóként is használható.A környékről – VízivárosVíziváros Buda egyik legszebb és legpatinásabb negyede, a Duna partján, a Várhegy lábánál.Történelem és modern életérzés tökéletes harmóniában: régi homlokzatok, elegáns éttermek és zöld belső udvarok.Néhány perc sétára található:-Széchenyi Lánchíd,-Királyi Palota és a Várhegyi Sikló,-híres Király fürdő,-hangulatos kávézók és borbárok a Fő utcán,-valamint a Duna-part, tökéletes hely esti sétákhoz és naplementékhez.A környék híres nyugalmáról, biztonságáról és magas életminőségéről.A nemrég felújított járdák, ápolt homlokzatok és zöldterületek különleges hangulatot adnak a Csalogány utcának.Minden elérhető gyalogosan: Lidl (30 méterre), Mammut bevásárlóközpont, iskolák, óvodák, villamos-, metró- és buszmegállók.Víziváros nem csupán egy lokáció – ez egy életstílus: Duna-parti séták, reggeli kávé a közeli kávézókban, csend és panoráma az óvárosra.Presztízse és fejlett infrastruktúrája miatt a városrész az egyik legkeresettebb lakó- és befektetési célpont Budapesten.Miért érdemes ezt a lakást választani-Csendes, de központi elhelyezkedés-Prémium minőségű kivitelezés, átgondolt alaprajz (gardrób, vendég-WC, mosókonyha)-Erkély, lift, panoráma, garázs – ritka kombináció-Rugalmas tulajdonstruktúra – ideális lakhatásra és befektetésre is-Presztízsértékű, történelmi Víziváros, magas szintű infrastruktúrávalNe hagyja ki ezt az egyedülálló lehetőséget!Hívjon minket további információért és időpont egyeztetésért – az ilyen ingatlanok ritkán kerülnek piacra.

Hirdető adatai

Hirdető neve: Otthon Centrum
Kapcsolattartó: Kolekcionova Nagyezsda
Hirdető telefonszáma: +36 70 461 9606
Honlap: -