Pest megye, Telki


 

Ingatlan adatai

Irányár: 180 000 000 Ft
Típus: ház
Kategória: eladó
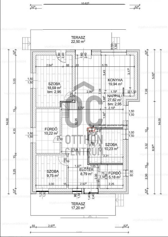
Alapterület: 142 m2
Fűtés: -
Állapota: új
Szobák száma: 4
Építés éve: 2025
Szintek száma: -
Telekterület: 707 m2
Kert mérete: 707 m2
Erkély mérete: 40 m2
Felszereltség: -
Parkolás: -
Kilátás: -
Egyéb extrák:  
-

Részletes leírás

Eladó Telkiben új építésű, K. ÉK.-i fekvésű, családi ház, csendes mellékutcában. Alap, falak, födém és tető szigetelt. A Minimál stílusú épület nappali-étkező- konyha, előtér (bejárat), kettő fürdőszoba (káddal és zuhanyzóval), három hálószoba, kettő félszoba (padlástérben), közlekedő valamint előszoba. A nappaliból valamint a konyhából a kényelmes, kertkapcsolatos teraszra lehet kilépni. A kertben kettő – három autónak nyitott gépkocsibeálló került kialakításra, betonozott, térkövezett. Kívülről a már végleges arculatával kerül átadásra az ingatlan, új kerítéssel, automatizált kapuval. A kert terep-rendezetten, füvesítve, (benne már koros fák, találhatóak), továbbá kerti csap és kerti világítás is kialakításra került. Továbbá a kertben kicsi faházikó van, egyéb tárolási lehetőséget biztosít, benne víz és csatorna kiállásokkal. A mai korszerű igényeknek megfelelően kiváló műszaki és energetikai paraméterek. Cserépfedés. Falazat 30-as Porotherm tégla 20 cm szigeteléssel, a tetőn 25 cm. – 30 cm. szigetelés. 10 Kw-os energiatakarékos levegő- vizes Hőszivattyú fűtés, padlófűtéssel és fan-coil rendszerű hűtéssel. Fatüzelésű kandalló kialakítva. Napelemrendszer vezetékezése előkészítve (igény szerint kiépítés). Három rétegű szigetelő műanyag (bukó - nyíló) nyílászárók. Biztonsági bejárati ajtó. Kaputelefon. TV és Internethez szükséges vezetékezés.

Hirdető adatai

Hirdető neve: Otthon Centrum
Kapcsolattartó: Majkuth Zsuzsanna
Hirdető telefonszáma: +36 70 461 9941
Honlap: -