Budapest, III.kerület


 

Ingatlan adatai

Irányár: 94 800 000 Ft
Típus: lakás (tégla)
Kategória: eladó
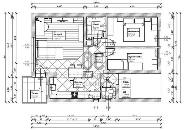
Alapterület: 59 m2
Fűtés: gáz (cirko)
Állapota: -
Szobák száma: 3
Építés éve: 1983
Szintek száma: -
Telekterület: -
Kert mérete: -
Erkély mérete: 4 m2
Felszereltség: -
Parkolás: -
Kilátás: kertre néző
Egyéb extrák:  
-

Részletes leírás

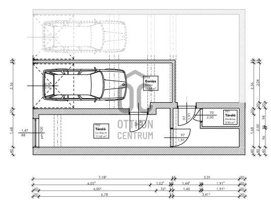
Kiváló vételi lehetőség: két hálószobás, amerikai konyhás lakás kiváló lokációban, zöld környezetben – Római-part közelében+ garázs + nagy tároló + kerti beálló + biztonságos belső udvarFontos információ: Olyan vevők jelentkezését várjuk, akik nyitottak arra, hogy az adásvételt követően a lakást 1 évre visszabérlésre biztosítsák az eladók számára.A Rómaifürdő kedvelt, zöldövezeti részén megvételre kínálunk egy jó állapotú, két hálószobás, amerikai konyhás-étkezős-nappalis lakást, amelyet rendezett, mindössze 6 lakásos társasház, valamint biztonságos, zárt, gondozott belső kert vesz körül. A kert ideális pihenésre és családi időtöltésre; közösségi használatú zöldfelület, játszóelemek helyezhetők ki, a lakóközösség pedig összetartó és aktívan gondozza a környezetét.A lakás jól átgondolt elrendezésű:- két külön nyíló hálószoba- amerikai konyhás nappali-étkező- két WC (az egyik a kádas fürdőben)- 4 m²-es hangulatos terasz, a belső kertre néző kilátássalA lakás műszaki felszereltsége korszerű: légkondicionáló a nappali-étkező-konyha térben, modern gázkazán, részben padlófűtés, szúnyoghálóval és redőnnyel ellátott nyílászárók, valamint jó állapotú beépített bútorok.Kiemelkedő tárolási lehetőségek:A lakáshoz az ingatlan árán felül kötelezően megvásárolandó:- 16 m²-es garázs- 11 m²-es külön tárolómelyek együtt kiemelkedően jó tárolási kapacitást biztosítanak. ( Együtt: 15 000 000.-Ft.)A terasz alatti murvás kerti beálló használati joga a vásárlóhoz kerül.A lakás földszinti elhelyezkedése rendkívül kényelmessé teszi a mindennapokat idősek és kisgyermekes családok számára, hiszen a kocsibeállótól pár lépéssel megközelíthető. A teraszról és a nappaliból rálátás nyílik a belső udvarra, így a gyerekek biztonságban szem előtt tarthatók játék közben.Lokáció – a Római-part minden előnyével:A környék zöld, hangulatos, kifejezetten élhető.- Duna-part: 15 perc séta- Rómaifürdő HÉV-megálló: 5 perc- Rómaifürdői Strandfürdő: 5 perc- Bevásárlási lehetőségek, óvoda, iskola, szolgáltatások rövid sétatávolságon belülA környék nyugodt, mégis jól megközelíthető – sokak számára olyan, mintha egy üdülőövezetben élnének.Hívjon most, tekintse meg a lehető leghamarabb -ne szalassza el a lehetőséget!

Hirdető adatai

Hirdető neve: Otthon Centrum
Kapcsolattartó: Nagy Péter
Hirdető telefonszáma: +36 70 469 3741
Honlap: -