Pest megye, Cegléd


 

Ingatlan adatai

Irányár: 77 000 000 Ft
Típus: ház
Kategória: eladó
Alapterület: 86 m2
Fűtés: -
Állapota: új
Szobák száma: 3
Építés éve: 2025
Szintek száma: -
Telekterület: 912 m2
Kert mérete: 912 m2
Erkély mérete: 18 m2
Felszereltség: -
Parkolás: -
Kilátás: -
Egyéb extrák:  
-

Részletes leírás

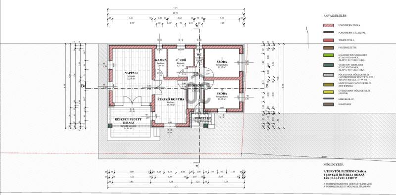
Cegléden, kertvárosias környezetben, közvetlenül a főútvonalon kínáljuk megvételre ezt a modern, energiatakarékos, épülő családi házat. A beruházás magas műszaki tartalommal, korszerű technológiákkal készül, így hosszú távon alacsony fenntartási költséget biztosít leendő tulajdonosa számára.Főbb műszaki jellemzők:- Egyedi hőszivattyús fűtésrendszer padlófűtéssel- Téglaépítésű szerkezet, kívül 15 cm hőszigeteléssel (növelhető minimális felárral)- Burkolatok, szerelvények egyedi igény szerint megválaszthatók- Elektromos áram és víz bekötve, kiépítve, házi szennyvíz aknávalA kulcsrakész ár tartalmazza az utcafronti kerítést, a kétszárnyú kaput és a kiskaput (3D fémkerítés, beton lábazattal, 1,7 m magasságban)Méretek:- Nettó alapterület: 77,47 m²- Teraszok: 17,56 m²- Összterület: 95,03 m²Átadás: a szerződéskötéstől számított 10–12 hónapon belülIrányár: 77 000 000 FtAmennyiben hitelt szeretne, úgy az Otthon Centrum az ország egyik legnagyobb és legmegbízhatóbb hitelközvetítőjeként teljes körű ésdíjmentes hitelügyintézéssel, biztosításkötéssel áll rendelkezésére!Kérje személyre szabott ajánlatunkat Kollégáinktól!A hirdetésben szereplő információk a megbízótól kapott adatok alapján készültek, pontosságukért felelősséget nem vállalunk! Az energetikai tanúsítvány besorolása és megadása a megbízó felelőssége. A megadott energetikai tanúsítványokat nem ellenőrizzük, azok valódiságáért felelősséget nem vállalunk!

Hirdető adatai

Hirdető neve: Otthon Centrum
Kapcsolattartó: Mészáros Béla
Hirdető telefonszáma: +36 70 461 9531
Honlap: -