Pest megye, Kismaros


 

Ingatlan adatai

Irányár: 120 000 000 Ft
Típus: ház
Kategória: eladó
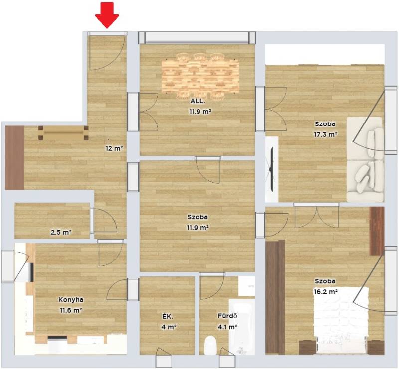
Alapterület: 201 m2
Fűtés: gáz (cirko)
Állapota: -
Szobák száma: 6
Építés éve: 1960
Szintek száma: -
Telekterület: 443 m2
Kert mérete: 443 m2
Erkély mérete: 20 m2
Felszereltség: -
Parkolás: -
Kilátás: -
Egyéb extrák:  
-

Részletes leírás

Kismaros szívében, a csendes és zöldövezeti környezetben várja új tulajdonosát ez a kiváló állapotú, használt családi ház, amely ideális választás lehet családosok számára. Az ingatlan alapterülete 201 nm, míg a telek mérete 443 nm, ami bőséges teret biztosít a családi élethez és a pihenéshez. A házban összesen 6 szoba található, amelyek között mindenki megtalálhatja a saját kis zugát. A két fürdőszoba kényelmet biztosít, de szintenként lett kialakítva. A két szint belülről nincs összenyitva, két generációs, és csak egy külső lépcsőn keresztül összejárható. A tágas konyha és a hozzá tartozó étkező tökéletes helyszíne lehet a családi összejöveteleknek, ahol a közös étkezések mellett a közös élmények is születhetnek. A házhoz tartozó 20 nm-es terasz ideális hely a nyári estéken való pihenéshez, ahol a gyönyörű panorámában gyönyörködhet, és élvezheti a természet közelségét. A kertkapcsolatos lakás előnye, hogy a gyerekek szabadon játszhatnak a szabadban, míg Ön a kerti tárolóban tárolhatja az eszközöket és a kerti bútorokat. Az ingatlan tehermentes, így gyorsan birtokba vehető. A fűtés gáz (cirko) rendszerrel működik, amely hatékonyan és gazdaságosan biztosítja a kellemes hőmérsékletet az év bármely szakában. Kismaros nemcsak a természet közelségéről ismert, hanem a biztonságos és csendes környezetéről is, amely ideális választássá teszi a családok számára. A környék számos lehetőséget kínál a szabadidő eltöltésére: a közeli erdők és túraútvonalak felfedezése vagy a Duna-parti séták mind-mind hozzájárulnak a nyugodt életvitelhez. A közlekedés is kiváló, hiszen a város könnyen megközelíthető autóval, és a tömegközlekedési lehetőségek is rendelkezésre állnak, így a főváros is gyorsan elérhető. Ez a családi ház nem csupán egy ingatlan, hanem egy lehetőség, hogy egy nyugodt, családbarát környezetben éljen, ahol a természet és a városi élet harmonikusan találkozik. Bármilyen kérdése merülne fel az ingatlannal vagy a környékkel kapcsolatban, kérem, keressen bizalommal!

Hirdető adatai

Hirdető neve: Otthon Centrum
Kapcsolattartó: Kézér Ádám
Hirdető telefonszáma: +36 70 461 9611
Honlap: -