Hajdú-Bihar megye, Debrecen


 

Ingatlan adatai

Irányár: 60 000 000 Ft
Típus: lakás (panel)
Kategória: eladó
Alapterület: 61 m2
Fűtés: házközponti fűtés
Állapota: -
Szobák száma: 3
Építés éve: 1975
Szintek száma: -
Telekterület: -
Kert mérete: -
Erkély mérete: -
Felszereltség: -
Parkolás: -
Kilátás: utcai
Egyéb extrák:  
-

Részletes leírás

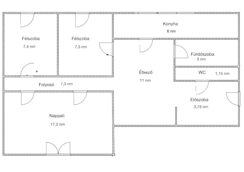
Eladásra kínálunk egy 61 m²-es, 1+2 félszobás, világos és csendes lakást Tócóvölgy szívében, egy rendezett, négyemeletes társasház 4. emeletén (nem zárószint!).Főbb jellemzők:- Alapterület: 61 m²- Elrendezés: nappali/hálószoba, étkező, konyha, két félszoba, kamra, előszoba, külön fürdő és WC- Távfűtés egyedi mérés nélkül, fűtő-hűtő klíma- Új bejárati ajtó- Frissen cserélt vízórák és szennyvízcsövek- Új, garanciás csaptelepek a konyhában és fürdőben- Saját, zárt tároló- Gondozott, parkosított udvar játszótérrel, kondiparkkal és padokkal Elhelyezkedés:Tócóvölgy Debrecen egyik legkedveltebb és legbarátságosabb városrésze, kiváló infrastruktúrával.A közelben minden megtalálható: élelmiszerbolt, iskola, óvoda, orvosi rendelő, gyógyszertár, pékség, ételbár, drogéria – sőt, még jégcsarnok is!Közlekedése kiváló:- Gyors elérés az autópálya-felhajtóhoz- Könnyen megközelíthető a Déli, Határ úti és Nyugati Ipari park, valamint a belváros- Ingyenes parkolás a ház körülTökéletes választás:- Saját otthonnak- Első lakásként- Kisgyermekes családoknak- Értékálló, biztonságos befektetéskéntAz ingatlan kizárólag készpénzes vevők számára elérhető.Ne hagyja ki ezt a kivételes lehetőséget – világos, tágas, gondosan karbantartott lakás Tócóvölgy legjobb részén!További információért és megtekintésért keressen bizalommal a hét bármely napján!

Hirdető adatai

Hirdető neve: Otthon Centrum
Kapcsolattartó: Tomsits Abigél
Hirdető telefonszáma: +36 70 388 6341
Honlap: -