Budapest, XIII.kerület


 

Ingatlan adatai

Irányár: 300 000 000 Ft
Típus: lakás (tégla)
Kategória: eladó
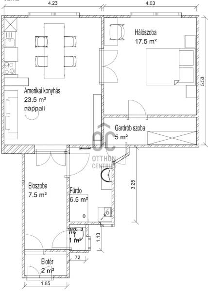
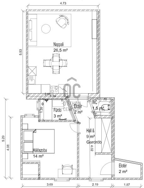
Alapterület: 119 m2
Fűtés: gáz (cirko)
Állapota: -
Szobák száma: 4
Építés éve: 1950
Szintek száma: -
Telekterület: -
Kert mérete: -
Erkély mérete: -
Felszereltség: -
Parkolás: -
Kilátás: utcai
Egyéb extrák:  
-

Részletes leírás

Egy igazán különleges lehetőség várja Önt Budapest szívében, az Újlipótváros vibráló környezetében. Kettő teljesen külön választott ingatlan egyben eladó!!!Ez a 119 négyzetméteres, kiváló állapotú lakások, ideális választás mindenki számára, akik a városi élet előnyeit keresik, ugyanakkor a nyugalomra is vágynak. Az ingatlan 4 szobával és 2 fürdőszobával rendelkezik, ami kényelmes életteret biztosít családok vagy akár befektetési célú vásárlók számára is. A prémium kivitelezés és a tágas nappali a modern életstílus minden igényét kielégíti, míg a konyhaszigetes amerikai konyha a közös étkezések és baráti összejövetelek ideális helyszínévé válik. Az ingatlan világos és exkluzív atmoszférája, valamint a nagy belmagasság különleges élményt nyújt a lakók számára. A fűtés gáz cirkó rendszerrel, míg a hűtés klímával biztosítja a kellemes hőmérsékletet egész évben. Az ingatlan közelében található közlekedési csomópontok révén a közlekedés kitűnő, így könnyedén elérheti a város bármely pontját, legyen szó munkáról vagy szabadidős tevékenységekről. Az Újlipótváros környéke nem csupán a közlekedési lehetőségei miatt vonzó, hanem kiváló ellátottsága miatt is. A közeli boltok, éttermek és kávézók széles választéka biztosítja, hogy minden szükségletét könnyedén kielégíthesse. Ezen felül a csendes környék és a belvárosi elhelyezkedés egyedülálló kombinációt kínál, amely lehetővé teszi, hogy a városi élet pezsgése mellett a nyugalmat is megtalálja. Ez a felkapott környék ideális választás mindazok számára, akik értékelik a modern életstílust, de nem kívánnak lemondani a természet közelségéről sem. Az ingatlan elhelyezkedése lehetővé teszi, hogy a város zöldterületei és parkjai könnyen elérhetők legyenek, így a szabadidős programok is könnyedén beilleszthetők a mindennapokba. Amennyiben felkeltette érdeklődését ez a kivételes ingatlan, kérjük, ne habozzon kapcsolatba lépni velünk! Szívesen állunk rendelkezésére bármilyen kérdéssel vagy további információval kapcsolatban, hogy Ön is a lehető legjobban tájékozódhasson az ingatlanpiac ezen szegmenséről. Az Ön bizalma számunkra fontos, és elkötelezettek vagyunk amellett, hogy a legjobb szolgáltatást nyújtsuk Önnek.

Hirdető adatai

Hirdető neve: Otthon Centrum
Kapcsolattartó: Posváncz Katalin
Hirdető telefonszáma: +36 70 716 9671
Honlap: -