Hajdú-Bihar megye, Debrecen


 

Ingatlan adatai

Irányár: 140 000 000 Ft
Típus: lakás (újépítésű)
Kategória: eladó
Alapterület: 89 m2
Fűtés: -
Állapota: új
Szobák száma: 4
Építés éve: 2025
Szintek száma: -
Telekterület: -
Kert mérete: -
Erkély mérete: 6 m2
Felszereltség: -
Parkolás: -
Kilátás: utcai
Egyéb extrák:  
-

Részletes leírás

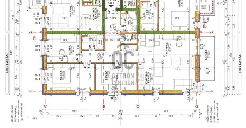
Eladó a Homokkert új építésű lakóparkjában egy új építésű, nappali + 3 szobás, 89 nm-es 1. emeleti tégla építésű lakás egy 12 lakásos társasházban. A tágas és napfényes, nyugati fekvésű nappali-étkező mellett 3 különnyíló szoba, valamint 2 fürdőszoba kerül kialakításra a lakótérben. Az épületen elhelyezett napelemeknek és a modern szigetelésnek köszönhetően a lakás fenntartási költségei rendkívül kedvezőek lesznek. A lakás helységeire látványterv készült. A kellemes hőérzetről a téli időszakban padlófűtés, míg nyáron mennyezethűtés fog gondoskodni. A belső burkolatok, ajtók és a konyhabútor még szabadon választhatóak 2026, februárjáig, így egyéni ízlésének megfelelően tudja kialakítani a belső teret. A lakás előreláthatóan kulcsrakész, beköltözhető állapotba 2026. augusztusában fog kerülni.A környék infrastruktúrája, biztosítja a kényelmes mindennapokat, mivel iskola, gyógyszertár, orvosi rendelő, McDonalds, Interspar is található egy rövid séta távolságra.Tökéletes lehetőség fiatalok, családok számára.Amennyiben felkeltette érdeklődését ez a most épülő ingatlan, kérem, ne habozzon feltenni kérdéseit, hiszen szívesen állok rendelkezésére a részletekkel kapcsolatban.További kérdésekkel és megtekintési időponttal kapcsolatban várjuk hívását a hét minden napján!

Hirdető adatai

Hirdető neve: Otthon Centrum
Kapcsolattartó: Dr. Nagy Erika
Hirdető telefonszáma: +36 70 461 9076
Honlap: -